Ufficio quadrilocale 113mq

Dati annuncio : Vendita Ufficio, Monza
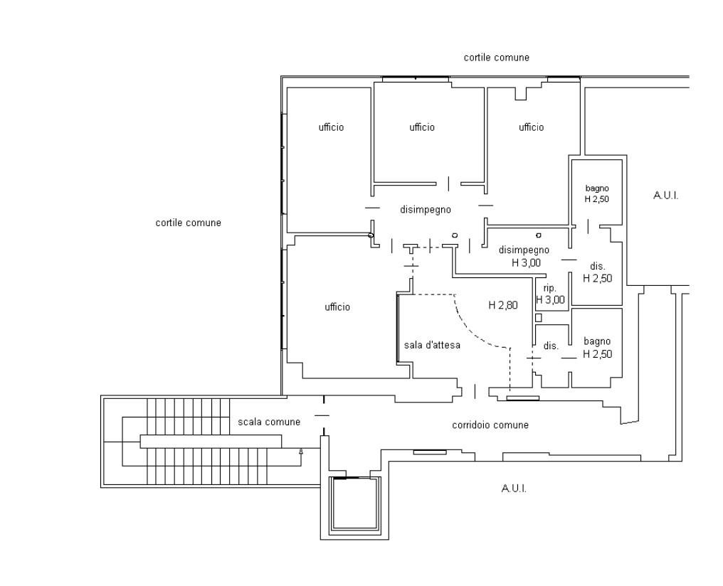
Monza via Manzoni - In pieno centro storico, a due passi dalla stazione FS e dai principali parcheggi interrati, VENDESI ampio ufficio di 113 mq posto al secondo e ultimo piano di piccola palazzina storica servita di ascensore. L´ufficio è da personalizzare ed è composto da ingresso con reception/sala d´attesa, 4 locali, doppi servizi e un ripostiglio.
Lo spazio si presta ottimamente come studio medico, scuola di lingue o qualsiasi studio professionale.
Il riscaldamento e condizionamento sono centralizzati a gestione autonoma e incluse nelle spese condominiali di circa euro 3.000 all´anno salvo conguaglio.
Il prezzo è inclusivo di un posto auto scoperto all´interno del cortile e subito sopra l´immobile l´uso esclusivo di 80 mq di terrazzo.
classe energetica D - SUBITO DISPONIBILE
prezzo di vendita: euro 398.000 - rif. 5271
- PropostaOffro
- ContrattoVendita
- Prezzo398.000,00 €
- Vani4
- Mq totali113
- Camere4
- Bagni2
- Classe energeticaD
- Classe energetica (ipe)35485
- Classe energetica (unità di misura)Kwh/m²a
- Tipologia immobileUfficio
- ProvinciaMonza e brianza
- ComuneMonza
- Data27-11-2025 05:08:47
- CodiceEA-8E4E52











