V.le TERACATI 502mq
Dati annuncio : Vendita Case, Siracusa
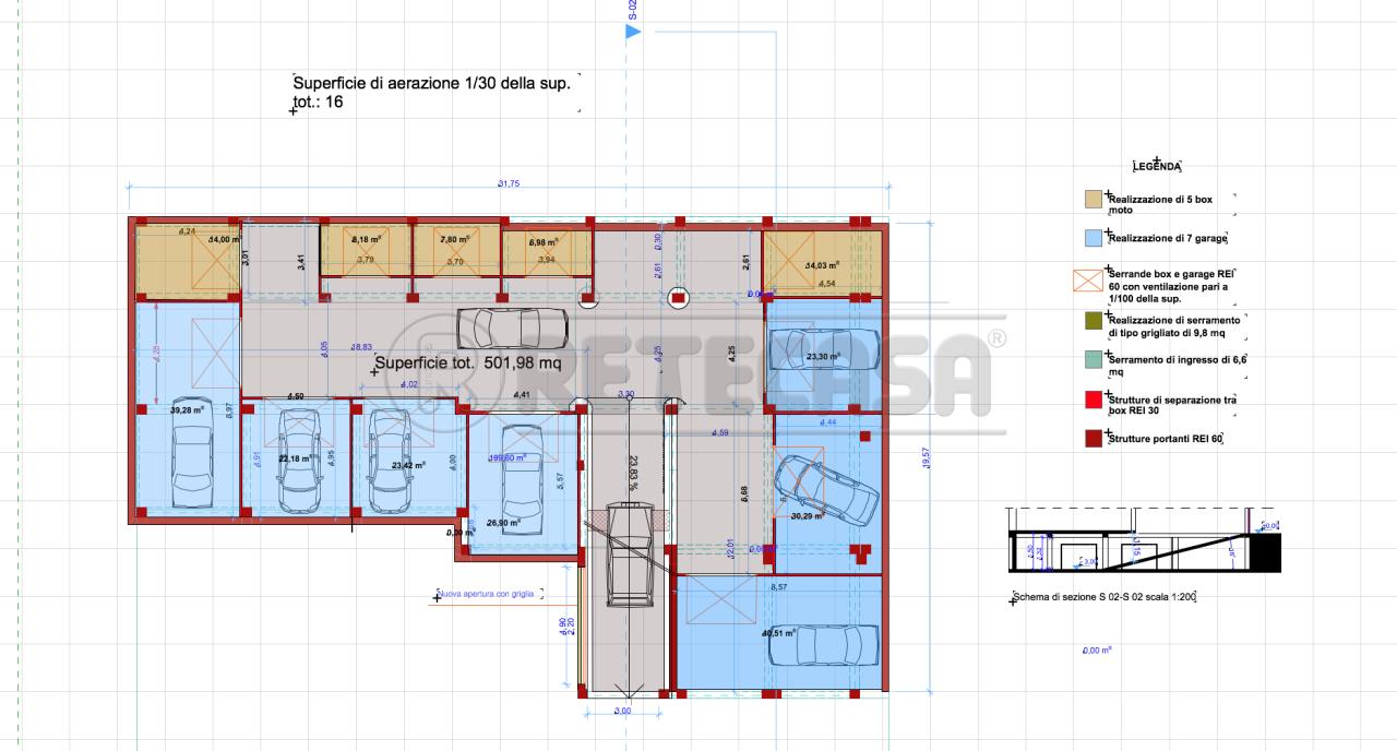
V.le TERACATI, si propone ampio deposito / garage di mq 500, seminterrato, allo stato grezzo avanzato; spazi abbastanza comodi per facilitare qualunque manovra con scivolo per garantire un
eventuale accesso per mezzi pesanti. Ubicazione centralissima in zona molto carente per le svariate e molteplici opportunita´ di cui la struttura ne beneficia e sfruttare a proprio rendiconto. Nel suo
interno sono stati progettatti diversi garages e box di svariate metrature con doppio vandaggio di rilevare la totale metratura, oppure il singolo acquisto disgiunto. Per ulteriori chiarimenti e max
info un semplice contatto presso la ns filiale di agenzia Retecasa. Richiesta 250000 euro tratt., Rif.,T053sr C/energ. non applicabile
- PropostaOffro
- ContrattoVendita
- Prezzo250.000,00 €
- Anno1980
- Numero piani5
- Mq totali502
- Classe energeticaNa
- Classe energetica (ipe)0.0
- AscensoreNo
- TerrazzoNo
- GiardinoNs
- CantinaNo
- ProvinciaSiracusa
- ComuneSiracusa
- IndirizzoV.le teracati
- Data17-07-2025 05:35:14
- CodiceEA-554BDF






