valtesino bilocale 70mq
200.000,00 €
0 Piace
0 Piace
Dati annuncio : Vendita Bivani, Ripatransone
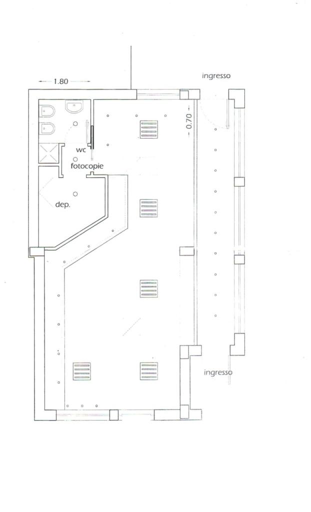
RIPATRANSONE – In quartiere residenziale di recente edificazione con presenza di scuole primarie, centro direzionale, commerciale e avviate attività quali studio medico, supermercato, bar, tabaccheria, vendesi locale commerciale di circa mq. 70 situato al piano terra di una palazzina di classe energetica D. Ha impianto di riscaldamento autonomo ed è dotato di ampie vetrine, un magazzino, un piccolo disimpegno ed un bagno. Attualmente è locato e regolamentato con contratto 6+6 . Rif. 3419.DiLeoImmobiliare.
- PropostaOffro
- ContrattoVendita
- Prezzo200.000,00 €
- Vani2
- Mq totali70
- Bagni1
- Classe energeticaD
- Classe energetica (ipe)26.0
- StatoBuono
- AscensoreNo
- TerrazzoNo
- GiardinoNs
- CantinaNo
- RiscaldamentoAutonomo
- BoxSi
- ProvinciaAscoli piceno
- ComuneRipatransone
- IndirizzoValtesino
- Data18-08-2025 05:07:34
- CodiceEA-FAAC2C











