vendita Largo San Giorgio 7 vani 145mq
Dati annuncio : Vendita vendita, Noale
Iniziamo le VENDITE di originali residenze sul nostro esclusivo territorio di Noale pieno di storia cultura e bellezza.
Vieni nella nostra Agenzia! Ti daremo tutte le informazioni su DIMORE NOA´
DIMORE NOA´ sorge a pochi passi dal centro storico del paese, in una posizione comodissima al capolinea degli autobus e alla Stazione ferroviaria, così da raggiungere facilmente la nostra splendida Venezia oppure Padova ma anche Treviso e Vicenza.
DIMORE NOA´ un progetto ESCLUSIVO per la sua eleganza e singolarità, offre un ventaglio di soluzioni abitative tali da soddisfare ogni tua esigenza.
Abitazioni a due e tre camere, con grandi ambienti dedicati alla zona living, spazi vivibili e ben distribuiti, serviti da portici che si affacciano a bellissimi giardini, per i vostri momenti di relax e convivialità oppure attici mansardati travati a vista, con generose altezze e ampie terrazze.
Il colpo d´occhio che caratterizza questo progetto sarà il VERDE, non solo nei giardini, che decorano tutte le aree comuni, la cui progettazione è stata concepita per dare all´abitare del complesso un senso di benessere e di tranquillità, ma anche in altezza su tutti i piani dove saranno inserite strutture con fioriere arredate con piante sempre verdi, una singolare cornice per le abitazioni.
DIMORE NOA´ , in centro ma fuori dal traffico, con un progetto che prevede la realizzazione di 6 palazzine, studiate con molta distanza tra loro per garantire la privacy e impreziosite da una lunga piscina con area attrezzata a solarium per i periodi estivi.
Le finiture interne saranno personalizzate per ogni cliente, che potrà scegliere su una ampia gamma di materiali di alta qualità, variare nei colori delle finiture e degli accessori.
La tua casa verrà consegnata in classe A4 con dotazioni tecnologiche e soluzioni costruttive innovative, isolamento termico acustico e comprensiva di VMC ventilazione meccanica per garantire la purificazione dell´aria in ogni ambiente.
Le abitazioni sono tutte comprensive di garage singoli, doppi o a disposizione anche posti auto coperti.
DIMORE NOA´ Sostenibilità Innovazione Confort!!!!
DIMORE NOA´, vivere in un ambiente intimo e prezioso. ed avrai il desiderio di tornare a casa!!!!!
Info e Dettagli nella nostra Agenzia Immobiliare
Classe Energetica A4
Prezzo a partire da Euro 4100.000,00 per le abitazioni a 3 camere
Nostro Rif. NK28_3C
Se per acquistare questo immobile hai la necessità di vendere prima un altro immobile, non preoccuparti perché ce ne occuperemo noi, seguendoti passo a passo sia nella vendita che nel successivo acquisto.
Si precisa che l´indirizzo esposto in pubblicità, per indicare la zona in cui si trova l´immobile in vendita, è puramente indicativo, al fine di salvaguardare la privacy del proprietario.
Per maggiori informazioni tel. 041.58.01.435 - cell. 393.96.30.883 Email: [email protected] - Sito: https://www.visioneimmobiliare.it
CLASSE ENERGETICA:
Accessori:
Antifurto, Aria Condizionata, Ascensore, Bagno Disabili, Cassaforte, Cancello Elettrico, Impianto Fotovoltaico, Impianto Satellitare, Lavanderia, Passaggio Automobilistico, Passaggio Pedonale, Piscina, Porta Blindata, Ripostiglio, Video Citofono
- PropostaOffro
- ContrattoVendita
- Prezzo410.000,00 €
- Anno2025
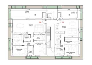
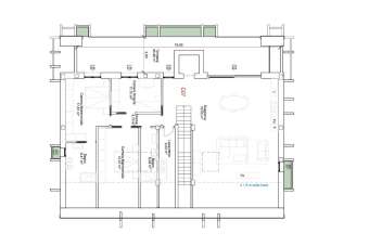
- Vani7
- Numero piani3
- Piano1
- Mq box20
- Mq balconi20
- Mq totali145
- Camere3
- Camere doppie2
- Camere singole1
- Bagni2
- Terrazzi1
- Classe energeticaA4
- StatoIn costruzione
- AscensoreSi
- Tipo costruzioneSignorile
- CucinaA vista
- GiardinoPrivato
- RiscaldamentoAutonomo
- ArrediNon arredato
- PanoramaVista aperta
- AccessoriAntifurto, aria condizionata, ascensore, bagno disabili, cassaforte, cancello elettrico, impianto fotovoltaico, impianto satellitare, lavanderia, passaggio automobilistico, passaggio pedonale, piscina, porta blindata, ripostiglio, video citofono
- PortineriaNo
- BoxSi
- ProvinciaVenezia
- ComuneNoale
- IndirizzoLargo san giorgio
- Data03-10-2025 05:29:28
- CodiceEA-818FAB











