vendita Largo San Giorgio 8 vani 120mq
Dati annuncio : Vendita vendita, Noale
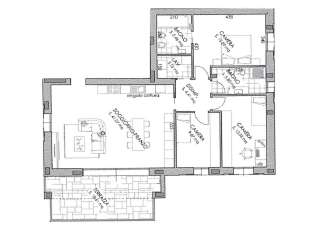
Se hai necessità di avere ampi spazi, ben distribuiti, con 3 camere di cui 2 matrimoniali ed oltre a due bagni, anche una preziosa lavanderia/ripostiglio, allora questo è l´appartamento che fa per te.
L´appartamento che ti stiamo proponendo è un´opportunità immobiliare di alta qualità.
In posizione centrale offre un ambiente residenziale tranquillo e sicuro.
L´immobile è caratterizzato da finiture di pregio e dettagli curati, che conferiscono un´eleganza senza tempo agli ambienti.
Gli spazi sono luminosi e ben illuminati grazie alla presenza di ampie finestre che consentono l´ingresso di luce naturale durante tutto il giorno. Dettaglio da non sottovalutare è una stupenda terrazza di circa 20 mq esposta a sud-est, con accesso dal soggiorno attraverso una porta-finestra di 4 metri.
La classe energetica A4 testimonia l´ottima efficienza energetica dell´appartamento, garantendo un consumo ridotto e un comfort abitativo ottimale. Questo aspetto non solo contribuisce al benessere degli occupanti, ma rappresenta anche un vantaggio significativo dal punto di vista economico.
La disposizione degli ambienti offre molteplici possibilità di personalizzazione per adattare l´appartamento alle esigenze individuali. Gli spazi sono generosi e permettono una comoda convivenza familiare.
Questo appartamento rappresenta un´opportunità di investimento unica nel suo genere. La sua classe energetica A4, la metratura generosa e le finiture di pregio conferiscono al proprietario un ambiente residenziale di elevato comfort e qualità.
Vi aspettiamo per visionarlo!!!
Classe Energetica ´´A4´´ Kwh/mq anno
Prezzo Euro 370.000,00
Nostro Rif. NK16_N16
Se per acquistare questo immobile hai la necessità di vendere prima un altro immobile, non preoccuparti perché ce ne occuperemo noi, seguendoti passo a passo sia nella vendita che nel successivo acquisto.
Si precisa che l´indirizzo esposto in pubblicità, per indicare la zona in cui si trova l´immobile in vendita, è puramente indicativo, al fine di salvaguardare la privacy del proprietario.
Per maggiori informazioni tel. 041.58.01.435 - cell. 393.96.30.883
Email: [email protected] - Sito : https://www.visioneimmobiliare.it
CLASSE ENERGETICA:
Accessori:
Aria Condizionata, Ascensore, Bagno Disabili, Cassaforte, Cancello Elettrico, Doppi Vetri, Impianto Fotovoltaico, Impianto Satellitare, Lavanderia, Passaggio Automobilistico, Passaggio Pedonale, Piscina, Porta Blindata, Ripostiglio, Video Citofono
- PropostaOffro
- ContrattoVendita
- Prezzo370.000,00 €
- Anno2023
- Vani8
- Piano3
- Mq box20
- Mq terrazzo19
- Mq totali120
- Camere3
- Camere doppie2
- Camere singole1
- Bagni2
- Terrazzi1
- Posti auto1
- Classe energeticaA4
- StatoNuovo
- AscensoreSi
- Tipo costruzioneSignorile
- CucinaAngolo cottura
- GiardinoNo
- RiscaldamentoAutonomo
- ArrediNon arredato
- PanoramaVista aperta
- AccessoriAria condizionata, ascensore, bagno disabili, cassaforte, cancello elettrico, doppi vetri, impianto fotovoltaico, impianto satellitare, lavanderia, passaggio automobilistico, passaggio pedonale, piscina, porta blindata, ripostiglio, video citofono
- PortineriaNo
- BoxSi
- ProvinciaVenezia
- ComuneNoale
- IndirizzoLargo san giorgio
- CodiceEA-405493






