vendita montelungo trilocale 85mq
Dati annuncio : Vendita vendita, Monza
Monza via Montelungo
Proponiamo nuova residenza in fase di costruzione.
Il progetto prevede la realizzazione di una palazzina ad uso residenziale di tre piani fuori terra e uno interrato, edificata in classe energetica A3; parte del lotto, facente parte del progetto, verrà riqualificato e destinato ad aera verde comunale con piante di alto fusto.
L´intervento prevede l´utilizzo di materiali e tecnologie di ultima generazione conformi a quanto previsto nella relazione energetica ed acustica:
Impianto fotovoltaico, riscaldamento a pavimento tramite pannelli radianti, impianto elettrico a gestitone tradizionale con comandi locali presenti negli ambienti oppure tramite applicazione Home+Control già configurata per il cliente, infissi in legno laccato con vetrocamera a basso emissivo e doppio vetro, tapparelle elettriche in alluminio, predisposizione impianto di raffrescamento mediante split e impianto di allarme volumetrico/perimetrale, ventilazione meccanica (VMC) capace di rinnovare costantemente l´aria indoor senza perdita di temperatura deumidificando gli ambienti per migliorare il benessere abitativo come la qualità dell´aria.
Disponibili unità di varie tipologie e metrature dal piano terra al piano terzo, con giardini ad uso esclusivo o ampi terrazzi e balconi.
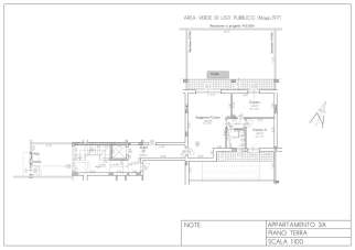
Nel dettaglio proponiamo 3 locali sito al piano terra composto da: ingresso, zona living con angolo cottura, camera matrimoniale con cabina armadio e servizio privato, cameretta, bagno padronale, giardino mq 80 con portico coperto e locale cantina.
Ampia scelta capitolato interno e possibilità di adattare gli ambienti alle proprie esigenze, ove possibile, modificando ampiezza e disposizione dei locali con la supervisione dell´architetto/progettista.
Possibilità box singoli e doppi.
CLASSE ENERGETICA:
Accessori:
Antifurto, Aria Condizionata, Ascensore, Cancello Elettrico, Doppi Vetri, Fibra Ottica, Impiando Domotica, Impianto Fotovoltaico, Impianto Satellitare, Pannelli Solari, Porta Blindata, Tapparelle Elettriche, Video Citofono
- PropostaOffro
- ContrattoVendita
- Prezzo314.000,00 €
- Anno2026
- Vani3
- Numero piani3
- Mq giardino80
- Mq totali85
- Camere2
- Camere doppie1
- Camere singole1
- Bagni2
- Classe energeticaA3
- StatoIn costruzione
- AscensoreSi
- Tipo costruzioneSignorile
- CucinaA vista
- GiardinoPrivato
- RiscaldamentoAutonomo
- AccessoriAntifurto, aria condizionata, ascensore, cancello elettrico, doppi vetri, fibra ottica, impiando domotica, impianto fotovoltaico, impianto satellitare, pannelli solari, porta blindata, tapparelle elettriche, video citofono
- PortineriaNo
- ProvinciaMonza e brianza
- ComuneMonza
- IndirizzoMontelungo
- Data05-12-2025 06:07:09
- CodiceEA-04BA3D











