vendita quadrilocale 70mq
60.000,00 €

0 Piace
0 Piace
Dati annuncio : Vendita vendita, Siniscola
SINISCOLA
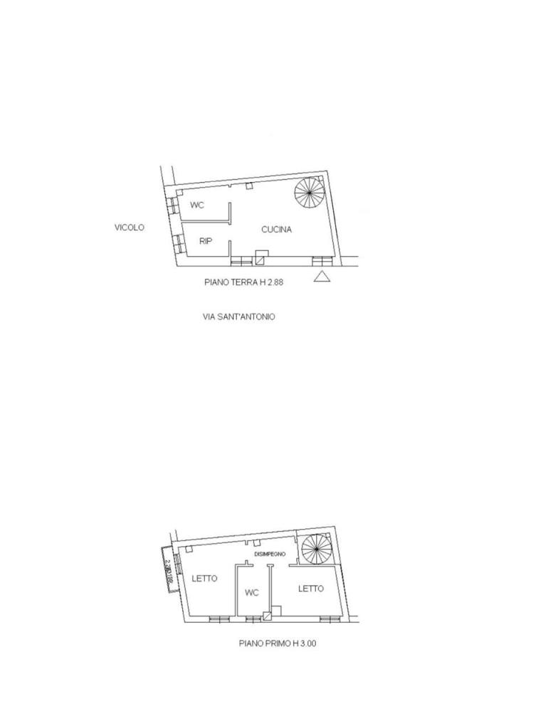
A Siniscola, in Via Sant´Antonio, proponiamo in vendita un terratetto caposchiera disposto su due livelli, ideale per chi desidera una soluzione indipendente nel centro abitato, da ristrutturare secondo il proprio gusto e le proprie esigenze.
Al piano terra l´immobile è composto da un soggiorno-pranzo, un cucinotto separato e un bagno di servizio. Una scala a chiocciola interna conduce al piano superiore, dove si sviluppa la zona notte, composta da due camere da letto di cui una con piccolo balcone e un secondo bagno.
La casa necessita di interventi di ristrutturazione, ma offre ottime potenzialità per chi desidera creare una dimora personalizzata o un investimento nel cuore del paese.
CLASSE ENERGETICA: G
- PropostaOffro
- ContrattoVendita
- Prezzo60.000,00 €
- Vani4
- Mq totali70
- Classe energeticaG
- AscensoreNo
- PortineriaNo
- ProvinciaNuoro
- ComuneSiniscola
- Data05-11-2025 05:25:08
- CodiceEA-C2D54F

Salva pinto immobiliare
Via Cagliari 96 - Siniscola








