vendita SR PONTINA 9 vani 245mq
85.117,00 €
0 Piace
0 Piace
Dati annuncio : Vendita vendita, Latina
(RIF. ASTA 6226)
ACQUISTO TRAMITE PARTECIPAZIONE ASTA GIUDIZIARIA
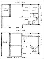
Appartamento ubicato a Latina - Via Pontina SR 148, piano 1ST 1. Trattasi di abitazione di tipo civile, su tre livelli composto da magazzino al 1S, pranzo soggiorno, cucina, bagno e ripostiglio, con veranda chiusa al piano terra, 3 camere dal letto e bagno al primo piano, con ampia corte esclusiva. L´immobile è inserito all´interno di un fabbricato costituito da un villa suddivisa in quattro appartamenti con ingresso indipendente tutti accessibili da un galleria comune a tutti gli appartamenti.
Prezzo base d´asta 113.490,00 EURO
Offerta minima 85.117,00 EURO
DATA VENDITA MARZO 2026
CLASSE ENERGETICA: Non Dichiarata
- PropostaOffro
- ContrattoVendita
- Prezzo85.117,00 €
- Vani9
- Mq giardino1000
- Mq totali245
- Classe energeticaNd
- AscensoreNo
- PortineriaNo
- ProvinciaLatina
- ComuneLatina
- IndirizzoSr pontina
- Data10-12-2025 05:52:43
- CodiceEA-18B1B6








