vendita verdi quadrilocale 95mq
Dati annuncio : Vendita vendita, Induno Olona
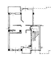
IMPRESA EDILE di Induno Olona, oggi VENDE un grande TRILOCALE ristrutturato ( possibilità di trasformazione anche in quadrilocale ) come da capitolato con le scelte di layout e finiture scelte dall´acquirente. Molto grande di 90 mq, oltre 2 terrazzini e libero su 3 lati, posto al piano rialzato di un condominio in via Verdi ( ottima zona che si sta rivalutando negli ultimi anni con lo sviluppo della ferrovia e di tutti i servizi nel raggio di meno di 1 km ). L´appartamento oggi si presenta da ristrutturare ma viene consegnato a rogito in 4 mesi dal preliminare COMPLETAMENTE RISTRUTTURATO a nuovo. Inoltre è possibile con la Geometra che ha approntato la ristrutturazione decidere ancora tutta la divisione interna in modo da avere la miglior personalizzazione.
In ultimo, possibilità di coordinamento nella progettazione e relativa fornitura di arredo con Partner di spicco ( cucine Ernesto Meda )
-TRILOCALE / QUADRILOCALE con 2 terrazzini con POSSSIBILITA´ DI DOPPI SERVIZI
-RISTRUTTURATO A NUOVO
-OTTIMA POSIZIONE
-OTTIMO PREZZO
-POSSIBILE RENT TO BUY
cosa aspetti?
CLASSE ENERGETICA: Non Applicabile
Accessori:
Antifurto, Aria Condizionata, Bagno Disabili, Canna Fumaria, Doppi Vetri, Fibra Ottica, Impiando Domotica, Parco Condominiale, Porta Blindata, Rete Dati, Tavolini Esterni
- PropostaOffro
- ContrattoVendita
- Prezzo148.000,00 €
- Vani4
- Mq giardino2000
- Mq totali95
- Camere2
- Camere doppie1
- Camere singole1
- Bagni2
- Terrazzi2
- Classe energeticaNa
- StatoRistrutturato
- AscensoreNo
- Tipo costruzioneMedio
- CucinaA vista
- GiardinoComune
- RiscaldamentoConta calorie
- ArrediPossibilità
- PanoramaVista giardino
- AccessoriAntifurto, aria condizionata, bagno disabili, canna fumaria, doppi vetri, fibra ottica, impiando domotica, parco condominiale, porta blindata, rete dati, tavolini esterni
- PortineriaNo
- ProvinciaVarese
- ComuneInduno olona
- IndirizzoVerdi
- Data29-10-2025 06:02:13
- CodiceEA-17C5AC










