vendita Via Giardini monolocale 85mq

45.000,00 €
0 Piace
0 Piace

Dati annuncio : Vendita vendita, Modena

RIF. ANNUNCIO: VY365


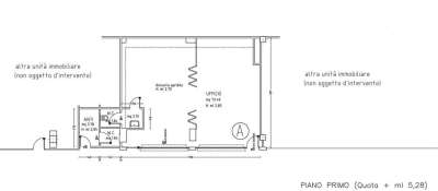
MODENA/SAN FAUSTINO - Presso il Direzionale 70, Real Casa Group propone in vendita UFFICIO (A/10) con INGRESSO INDIPENDENTE, doppio Accesso, da sistemare e da creare ex-novo l´impiantistica caldo/freddo. Si compone di un openspace oltre che antibagno e bagno nuovi. Facile accesso tramite scale esterne, piano PRIMO con affaccio riservato. Già pronto e disponibile alla vendita. Ottimo anche da investimento per metterlo in locazione.

L´edificio si presenta come uno dei più significativi interventi realizzati a seguito delle politiche urbane degli anni 60 per dare spazio al terziario dei servizi in piena espansione; si colloca in una posizione favorevole e comoda alla viabilità, nonchè ricca di parcheggi e si compone di tre edifici con servizi commerciali che ne creano una forma immediatamente riconoscibile e dal grande design.

Per info:
STUDIO
[email protected]
realcasamodena.it
CLASSE ENERGETICA: G

Accessori:
Doppio Ingresso, Ingresso Indipendente

  • PropostaOffro
  • ContrattoVendita
  • Prezzo45.000,00 €
  • Vani1
  • Mq totali85
  • Bagni1
  • Classe energeticaG
  • StatoDa ristrutturare
  • AscensoreNo
  • Tipo costruzioneMedio
  • RiscaldamentoDa creare
  • ArrediNon arredato
  • AccessoriDoppio ingresso, ingresso indipendente
  • PortineriaNo
  • ProvinciaModena
  • ComuneModena
  • IndirizzoVia giardini
  • CodiceEA-B83BB5