vendita Via Lunga 5 vani 138mq
Dati annuncio : Vendita vendita, Montelabbate
NUOVO PROGETTO OSTERIA NUOVA - RIF. MVR238 - In ottima posizione, a due passi da tutti i principali servizi, proponiamo in vendita appartamento unico nel suo genere, di nuova e prossima realizzazione, posto al piano primo con ingresso indipendente, con 3 lati liberi.
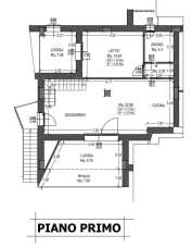
L´appartamento sviluppa su due livelli, circa 107 mq, ed è composto al primo livello da: ingresso, ampio e luminoso soggiorno con cucina a vista, da questo ambiente si acceda a spazioso terrazzo loggiato, ideale per cene e pranzi estivi, disimpegno, camera matrimoniale con terrazzo loggiato e bagno. Al secondo livello completamente alto e praticabile, collegato con comoda scala in muratura, troviamo altra camera matrimoniale con terrazzo loggiato, cameretta collegata sempre a spazioso terrazzo loggiato e altro bagno. Essendo le divisioni interne completamente personalizzabili gli ambienti al piano superiore potrebbero diventare un ulteriore zona giorno visto gli ampi terrazzi ideali per momenti conviviali e di relax.
Completa la proprietà al piano seminterrato garage di circa 25 mq.
Ottime le rifiniture presenti nel capitolato, completo di predisposizione per aria condizionata, predisposizione impianto d´allarme, impianto fotovoltaico per uso diretto, pompa di calore, riscaldamento a pavimento, tapparelle automatiche in alluminio, infissi in PVC con triplo vetro. Gli alloggi saranno realizzati in linea con le nuove leggi vigenti, per un ottimo vivere e bassissimi consumi energetici, possibilità di prenotazione. EURO 332.000 TRATTABILI (Classe energetica: A1) Per motivi di privacy la via indicata e la mappa sui portali non corrispondono esattamente alla posizione dell´ immobile. RIF. MVR238
CLASSE ENERGETICA:
Accessori:
Antifurto, Aria Condizionata, Doppi Vetri, Impianto Fotovoltaico, Impianto Satellitare, Ingresso Indipendente, Lavanderia, Porta Blindata, Rete Dati, Ripostiglio, Zanzariere
- PropostaOffro
- ContrattoVendita
- Prezzo332.000,00 €
- Anno2025
- Vani5
- Piano1
- Mq box26
- Mq mansarda41
- Mq terrazzo7
- Mq totali138
- Camere3
- Camere doppie2
- Camere singole1
- Bagni2
- Terrazzi1
- Classe energeticaA1
- StatoNuovo
- AscensoreNo
- Tipo costruzioneSignorile
- CucinaA vista
- GiardinoPrivato
- RiscaldamentoAutonomo
- AccessoriAntifurto, aria condizionata, doppi vetri, impianto fotovoltaico, impianto satellitare, ingresso indipendente, lavanderia, porta blindata, rete dati, ripostiglio, zanzariere
- PortineriaNo
- BoxSi
- ProvinciaPesaro e urbino
- ComuneMontelabbate
- IndirizzoVia lunga
- Data18-09-2025 05:25:51
- CodiceEA-49C755









