vendita Via nuova in badia di cantignano quadrilocale 94mq
Dati annuncio : Vendita vendita, Capannori
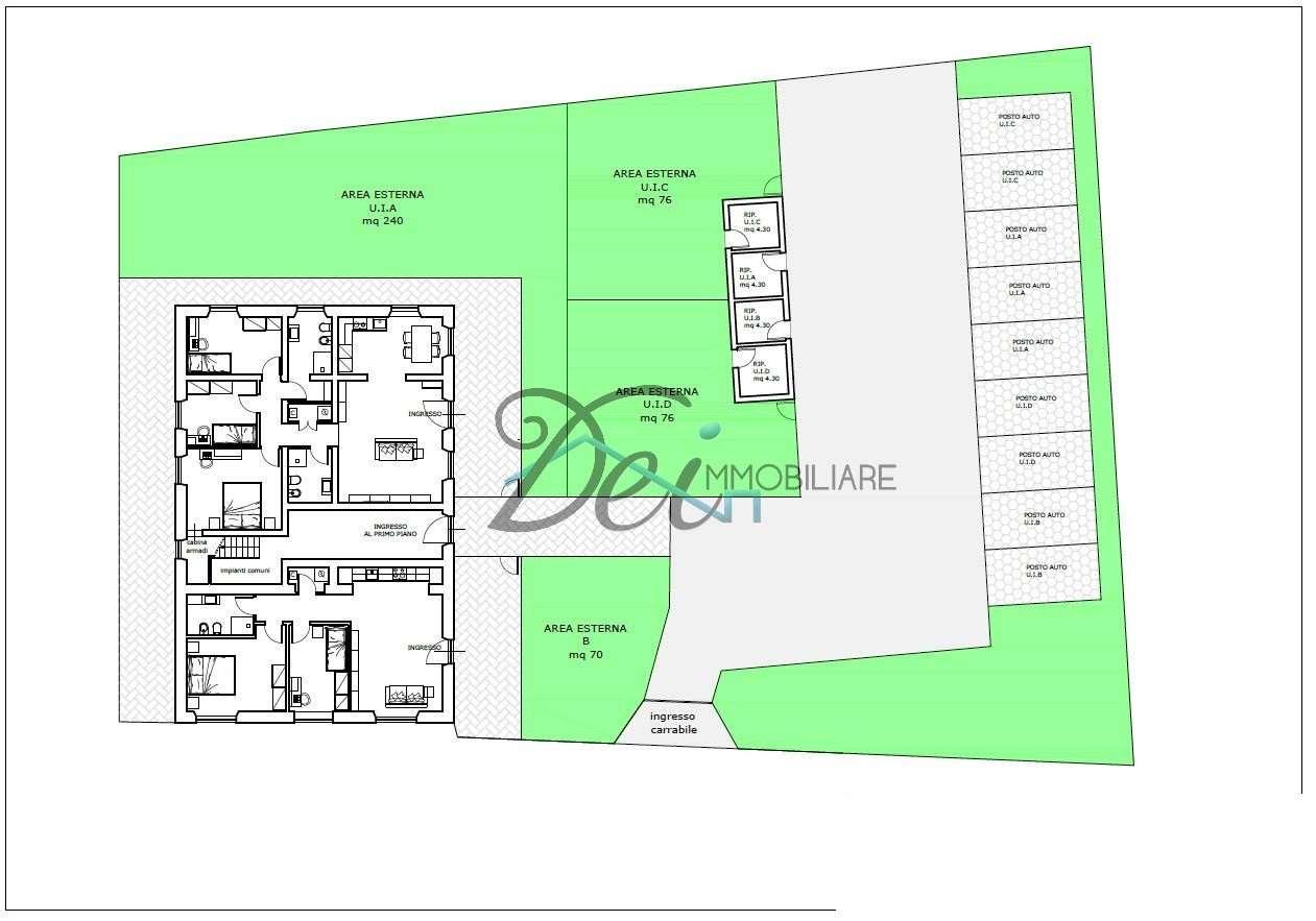
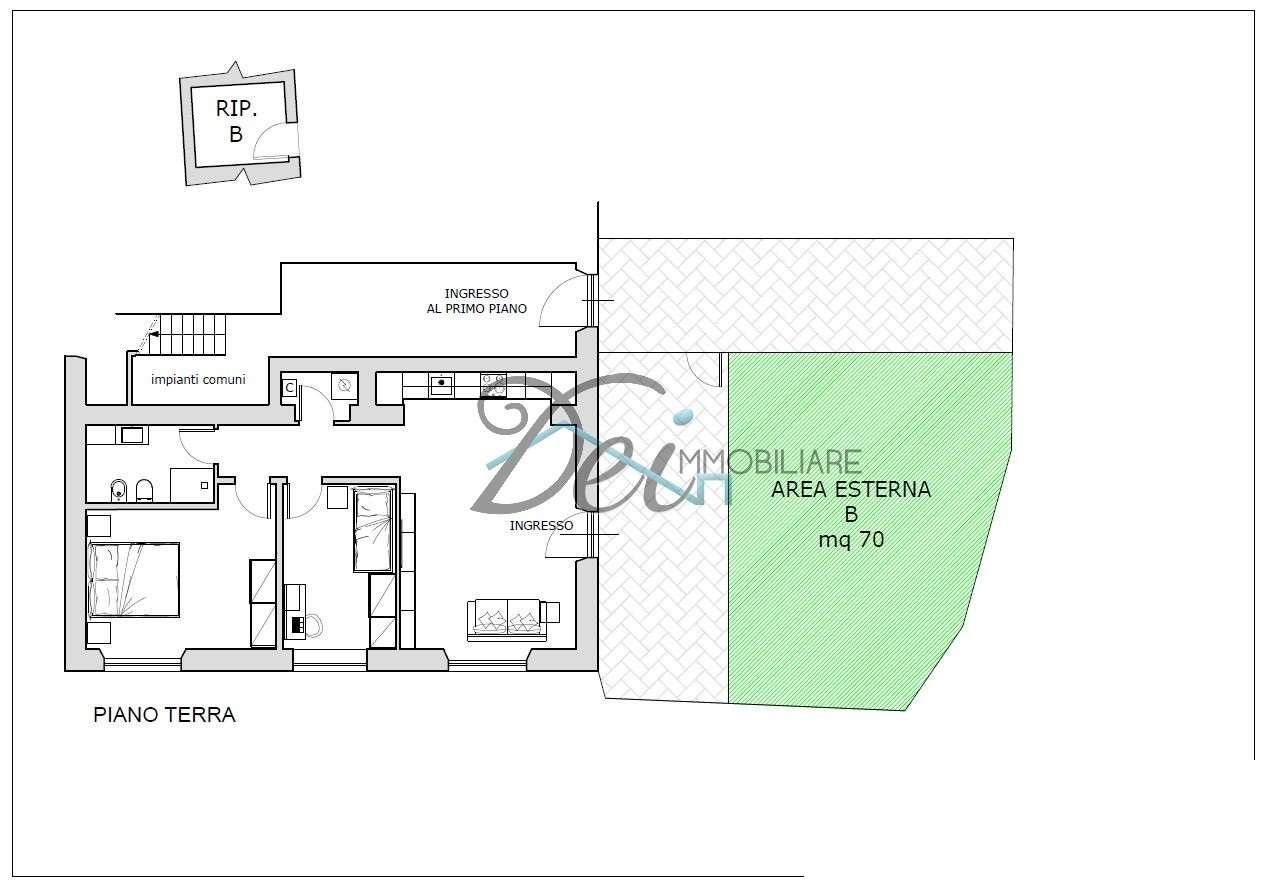
BADIA DI CANTIGNANO - In posizione tranquilla, vicina a tutti i servizi a soli 5 Km dal centro di Lucca, prossima realizzazione di appartamento al piano terra di circa 94 mq corredato da 85 mq di giardino e cosi composto:
Ingresso, soggiorno con cucina a vista, ripostiglio, disimpegno, camera matrimoniale, camera singola e bagno finestrato.
A corredo giardino privato di 85 mq, cantinetta esterna e posti auto privati.
Immobile in Classe Energetica ´´A´´ dotato di tutti i comforts ed impianti a risparmio energetico come il riscaldamento a pavimento, pannelli fotovoltaico da 3Kw/h , predisposizione colonnina di ricarica auto elettriche, infissi a taglio termico ed isolamento termico .Finiture di pregio personalizzabili.
DISPONIBILI ALTRI TRE APPARTAMENTI CON DUE O TRE CAMERE DA LETTO E TUTTI CORREDATI DA GIARDINO.
PER MOTIVI DI PRIVACY L´INDIRIZZO INDICATO NELL´ANNUNCIO NON CORRISPONDE ALLA REALE UBICAZIONE DELL´IMMOBILE.
CONTATTACI PER AVERE PIÙ DETTAGLI.
PUOI TROVARE TUTTE LE OFFERTE AGGIORNATE SUL NOSTRO SITO INTERNET: www.deimmobiliare.com
SEGUICI ANCHE SULLA NOSTRA PAGINA FACEBOOK Dei Immobiliare
D E I I M M O B I L I A R E - Via Pesciatina 173 Lunata (LU) TEL UFFICIO: 0583. CELL. 329. - EMAIL: [email protected]
SELEZIONIAMO CON CURA GLI IMMOBILI PIU´ INTERESSANTI, NELLE VARIE ZONE DELLA PROVINCIA DI LUCCA.
CONTATTACI PER RICHIESTE E INFORMAZIONI AGGIUNTIVE.
CLASSE ENERGETICA: A+
Accessori:
Antifurto, Aria Condizionata, Bagno Disabili, Cancello Elettrico, Doppi Vetri, Impianto Fotovoltaico, Impianto Satellitare, Ingresso Indipendente, Pannelli Solari, Passaggio Automobilistico, Passaggio Pedonale, Porta Blindata, Ripostiglio, Video Citofono, Video Sorveglianza
- PropostaOffro
- ContrattoVendita
- Prezzo265.000,00 €
- Anno2024
- Vani4
- Mq box5
- Mq giardino85
- Mq totali94
- Camere2
- Camere doppie1
- Bagni1
- Posti auto2
- Unità condominiali4
- Classe energeticaA+
- StatoProssima realizzazione
- AscensoreNo
- Tipo costruzioneMedio
- CucinaA vista
- GiardinoPrivato
- RiscaldamentoAutonomo
- ArrediNon arredato
- PanoramaVista aperta
- AccessoriAntifurto, aria condizionata, bagno disabili, cancello elettrico, doppi vetri, impianto fotovoltaico, impianto satellitare, ingresso indipendente, pannelli solari, passaggio automobilistico, passaggio pedonale, porta blindata, ripostiglio, video citofono, video sorveglianza
- PortineriaNo
- BoxSi
- ProvinciaLucca
- ComuneCapannori
- IndirizzoVia nuova in badia di cantignano
- CodiceEA-361FF7






