vendita via Prealpi quadrilocale 135mq
Dati annuncio : Vendita vendita, Seveso
Seveso, zona Baruccana – In piccolo complesso tri-familiare di nuova costruzione, pronta consegna e con possibilità di personalizzare le finiture, disponiamo di ultimi 2 quadrilocali completamente indipendenti, in classe energetica A3, privi di spese condominiali.
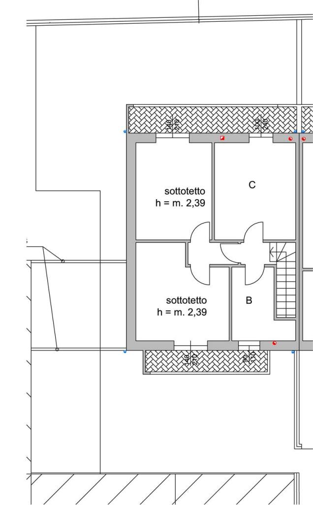
Questa abitazione di 128 mq, distribuita su 2 livelli e libera su tre lati, offre ampi spazi luminosi e ben organizzati, arricchiti da un´ampia area esterna di 110 mq.
Al piano terra, l´ingresso indipendente si apre su un luminoso soggiorno con cucina a vista, collegato a un disimpegno che conduce al bagno finestrato. Al primo piano si trovano tre camere da letto tutte con accesso al balcone e il secondo bagno.
Completa la proprietà un posto auto privato, incluso nel prezzo.
.
Caratteristiche principali:
• Infissi in PVC con triplo vetro basso emissivo e tapparelle motorizzate in alluminio.
• Porta blindata.
• Riscaldamento autonomo a pavimento con pannelli radianti + predisposizione per impianto di condizionamento.
• Pompa di calore autonoma per il riscaldamento delle singole unità abitative e la produzione di acqua calda sanitaria.
• Impianto fotovoltaico.
• Isolamento termico - acustico.
• Predisposizione allarme.
• Impianto Tv e satellitare. Videocitofono a colori.
.
Le finiture sono personalizzabili, offrendo la possibilità di scegliere i dettagli secondo i propri gusti.
Contattaci subito per prenotare una visita e scoprire tutte le potenzialità di questa proposta esclusiva!
CLASSE ENERGETICA:
Accessori:
Impianto Fotovoltaico, Impianto Satellitare, Porta Blindata, Tapparelle Elettriche, Video Citofono
- PropostaOffro
- ContrattoVendita
- Prezzo395.000,00 €
- Anno2024
- Vani4
- Numero piani1
- Mq giardino110
- Mq balconi12
- Mq mansarda64
- Mq totali135
- Camere3
- Bagni2
- Balconi2
- Posti auto1
- Unità condominiali3
- Classe energeticaA3
- StatoNuovo
- AscensoreNo
- Tipo costruzioneSignorile
- CucinaA vista
- GiardinoPrivato
- RiscaldamentoAutonomo
- ArrediNon arredato
- AccessoriImpianto fotovoltaico, impianto satellitare, porta blindata, tapparelle elettriche, video citofono
- PortineriaNo
- ProvinciaMonza e brianza
- ComuneSeveso
- IndirizzoVia prealpi
- CodiceEA-E8AFAF






