vendita Via Roma 5 vani 140mq
128.000,00 €
0 Piace
0 Piace
Dati annuncio : Vendita vendita, Montelabbate
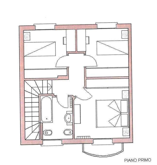
MONTELABBATE CASA A SCHIERA: Schiera centrale di recente costruzione, ALLO STATO GREZZO e completamente personalizzabile, disposta su 3 livelli cosi composta: pianto terra, soggiorno, cucina e bagno, al piano primo collegato con comoda scala interna troviamo camera matrimoniale, 2 camere singole,un terrazzino e un altro bagno. Al piano seminterrato garage grande, disimpegno con lavanderia e altro bagno. Completa la proprietà piccolo scoperto privato, oltre a comodo posto auto privato davanti l´ingresso del garage, (Classe energetica non necessaria immobile in corso di costruzione) EURO 128.000 RIF. MVR194
CLASSE ENERGETICA: Non Applicabile
- PropostaOffro
- ContrattoVendita
- Prezzo128.000,00 €
- Vani5
- Mq box25
- Mq terrazzo5
- Mq taverna25
- Mq totali140
- Camere3
- Camere doppie1
- Camere singole2
- Bagni2
- Terrazzi2
- Posti auto1
- Classe energeticaNa
- AscensoreNo
- CucinaAngolo cottura
- GiardinoPrivato
- PortineriaNo
- BoxSi
- ProvinciaPesaro e urbino
- ComuneMontelabbate
- IndirizzoVia roma
- Data18-08-2025 06:37:55
- CodiceEA-8EE614






