E' in corso la verifica sull'accuratezza dei dati del post
vendita VIA SALVO D´ACQUISTO bilocale 55mq
120.000,00 €
0 Piace
0 Piace
Dati annuncio : Vendita vendita, Mariano Comense
MARIANO COMENSE – ELEGANTE BILOCALE CON AUTORIMESSA
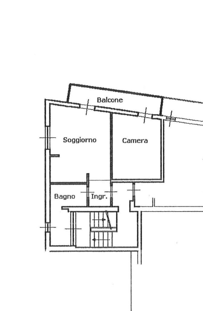
Proponiamo in vendita un recente ed elegante bilocale situato al primo piano di una soluzione senza spese condominiali. L´immobile è composto da ingresso, soggiorno con cucina a vista, camera da letto, bagno e un ampio balcone, ideale per chi cerca un ambiente luminoso e accogliente. Completa la proprietà un´autorimessa al piano terreno.
Situato in una zona tranquilla ma ben servita, l´appartamento è disponibile da subito. Per maggiori informazioni o per fissare una visita, contattaci.
CLASSE ENERGETICA: E 287,59 kWh/m2 a
- PropostaOffro
- ContrattoVendita
- Prezzo120.000,00 €
- Anno2004
- Vani2
- Piano1
- Mq balconi8
- Mq totali55
- Camere1
- Bagni1
- Balconi1
- Classe energeticaE
- Classe energetica (ipe)287.59
- StatoOttimo
- AscensoreNo
- CucinaA vista
- RiscaldamentoAutonomo
- PanoramaVista aperta
- PortineriaNo
- BoxSi
- ProvinciaComo
- ComuneMariano comense
- IndirizzoVia salvo d'acquisto
- CodiceEA-1133E8