vendita Via San Lorenzo 20 vani 3400mq
340.000,00 €
0 Piace
0 Piace
Dati annuncio : Vendita vendita, Castelnuovo Rangone
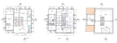
Rif. RM8061 - a pochi km. da Modena, in zona Cavidole, proponiamo Borgo/ Rustico da ristrutturare con possibilità di ricavare 3 unità abitative per un totale di 700 mq. con 1000 mq. di terreno cadauna.
Progetto e Planivolumetrico presentati ed approvati dal Comune, visibili presso i ns. uffici.
Possibilità di usufruire dell´ECOBONUS su una unità e dell´ANTISISMICA su tutte e tre .
Richiesta 340.000EURO
Per ulteriori informazioni 335 6072863 oppure 059 7124859
CLASSE ENERGETICA: In fase di valutazione
- PropostaOffro
- ContrattoVendita
- Prezzo340.000,00 €
- Vani20
- Mq totali3400
- Unità condominiali3
- Classe energeticaVa
- AscensoreNo
- PortineriaNo
- ProvinciaModena
- ComuneCastelnuovo rangone
- IndirizzoVia san lorenzo
- Data18-08-2025 06:37:55
- CodiceEA-5DCA6B











