vendita via san Lorenzo monolocale 1600mq
580.000,00 €
0 Piace
0 Piace
Dati annuncio : Vendita vendita, Lazzate
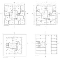
LOTTO DI TERRENO EDIFICABILE IN VENDITA A LAZZATE CON POSSIBILITA´ DI PROGETTO.
.
Proponiamo lotto di terreno edificabile di ampia metratura : 1.600 mq. - volumetria edificabile: 4689 mc, con possibilità di progetto per la realizzazione di una palazzina di 10 famiglie.
.
Il lotto ha una forma regolare ed è tutto pianeggiante, situato in posizione tranquilla a poca distanza dal centro paese.
Ideale per imprese che vogliono realizzare nuove unità abitative.
Disponibilità immediata.
Informazioni e documentazione disponibile presso i nostri uffici.
.
Le foto nell´annuncio sono indicative.
Per qualsiasi ulteriore informazione o per visionare l´immobile contattare Immobiliare Borromeo al numero: 0362.509099 - 344.0963021
CLASSE ENERGETICA:
- PropostaOffro
- ContrattoVendita
- Prezzo580.000,00 €
- Vani1
- Mq totali1600
- Classe energeticaNc
- AscensoreNo
- PortineriaNo
- ProvinciaMonza e brianza
- ComuneLazzate
- IndirizzoVia san lorenzo
- Data14-10-2025 05:05:48
- CodiceEA-628678










