vendita via Tuveri quadrilocale 145mq
Dati annuncio : Vendita vendita, Assemini
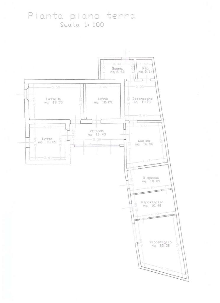
Assemini, Zona via Carmine, su lotto di 620 mq indipendente su unico livello libera sù 4 lati degli anni 50 da ristrutturare composta da, Sala, Cucina, 3 camere, bagno, cortile sù 3 lati, vari locali di sgombero.
APE classe G
indipendente anni 50 completamente da ristrutturare, lotto di 620 mq di terra edificabile in zona d´espansione
Cercaci su google come.... laimmobiliare .net per conoscere tutte le nostre proposte su Cagliari , Elmas , Assemini, Decimomannu , Uta
organizza il tuo VIRTUAL TOUR
Euro 115000
Rif. A 2411
Per appuntamenti 3288820738 / 3318601890
o visita il sito laimmobiliare .net per fissare un appuntamento in modo autonomo
CLASSE ENERGETICA: G
Accessori:
Canna Fumaria, Ingresso Indipendente, Passaggio Automobilistico, Passaggio Pedonale
- PropostaOffro
- ContrattoVendita
- Prezzo115.000,00 €
- Anno1950
- Vani4
- Mq giardino620
- Mq totali145
- Camere3
- Bagni1
- Posti auto3
- Classe energeticaG
- StatoDa ristrutturare
- AscensoreNo
- CucinaAbitabile
- GiardinoPrivato
- RiscaldamentoAutonomo
- AccessoriCanna fumaria, ingresso indipendente, passaggio automobilistico, passaggio pedonale
- PortineriaNo
- ProvinciaCagliari
- ComuneAssemini
- IndirizzoVia tuveri
- Data18-08-2025 06:37:55
- CodiceEA-3D2475











