vendita VIA VALISETTA quadrilocale 110mq

335.000,00 €
0 Piace
0 Piace

Dati annuncio : Vendita vendita, Alzate Brianza

Eleganti soluzioni abitative in classe energetica A3, situate in una posizione privilegiata, si trovano in un´area verde antistante il centro, garantendo tranquillità senza rinunciare alla comodità dei servizi. Ottima esposizione e conformazione pianeggiante, ideali per un comfort abitativo superiore. Un´opportunità perfetta per chi cerca efficienza energetica, benessere e qualità della vita.
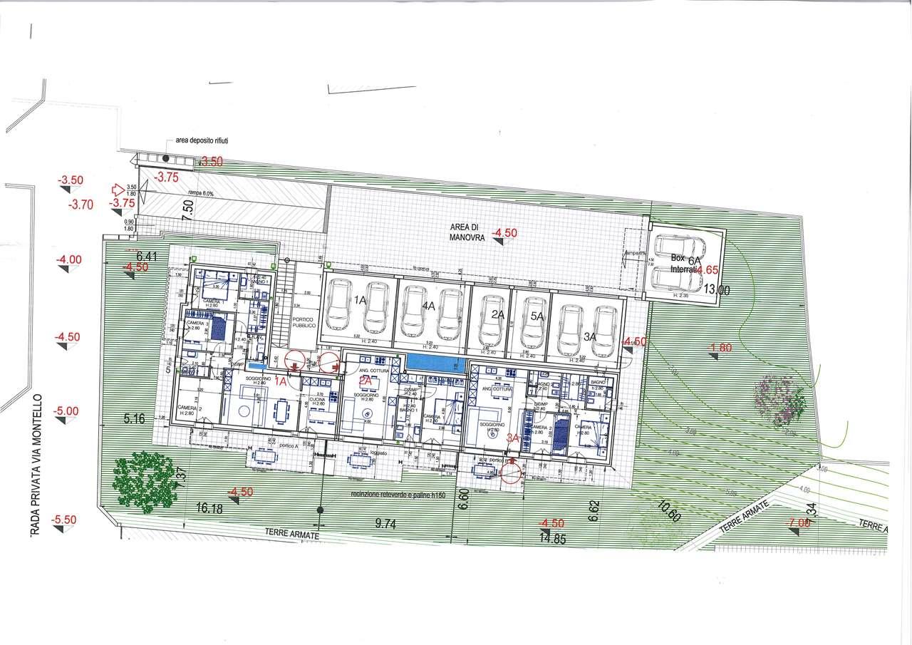
Il progetto prevede una moderna ed elegante palazzina composta di 6 unità e comprensiva di bilocale, trilocale e quadrilocale al piano terra con giardino e bilocale, trilocale e quadrilocale al piano primo con terrazzi. Tutti gli appartamenti avranno a disposizione con autorimesse singole o doppie.
APPARTAMENTO PIANO PRIMO (ULTIMO) QUADRILOCALE CON TERRAZZO 4A: soggiorno, cucina abitabile, disimpegno notte, camera matrimoniale con cabina armadio e bagno, seconda camera, terza camera, secondo bagno, lavanderia, portico sulla zona giorno, balcone sulle camere. Autorimessa doppia- Prezzo EURO. 335.000,00 + iva comprensivo di autorimessa doppia
CLASSE ENERGETICA:

Accessori:
Cancello Elettrico, Impianto Fotovoltaico, Impianto Satellitare, Passaggio Automobilistico, Passaggio Pedonale, Porta Blindata, Video Citofono

  • PropostaOffro
  • ContrattoVendita
  • Prezzo335.000,00 €
  • Vani4
  • Numero piani1
  • Piano1
  • Mq box30
  • Mq balconi7
  • Mq terrazzo17
  • Mq totali110
  • Camere3
  • Bagni2
  • Terrazzi1
  • Unità condominiali6
  • Classe energeticaA3
  • StatoProssima realizzazione
  • AscensoreNo
  • Tipo costruzioneSignorile
  • CucinaAbitabile
  • GiardinoNo
  • PanoramaVista aperta
  • AccessoriCancello elettrico, impianto fotovoltaico, impianto satellitare, passaggio automobilistico, passaggio pedonale, porta blindata, video citofono
  • PortineriaNo
  • BoxNo
  • ProvinciaComo
  • ComuneAlzate brianza
  • IndirizzoVia valisetta
  • CodiceEA-AC3C6B