Via ASI 750mq

570.000,00 €
0 Piace
0 Piace

Dati annuncio : Vendita Case, Frosinone

POSIZIONE
Frosinone, in zona industriale, Via ASI 4.

DESCRIZIONE
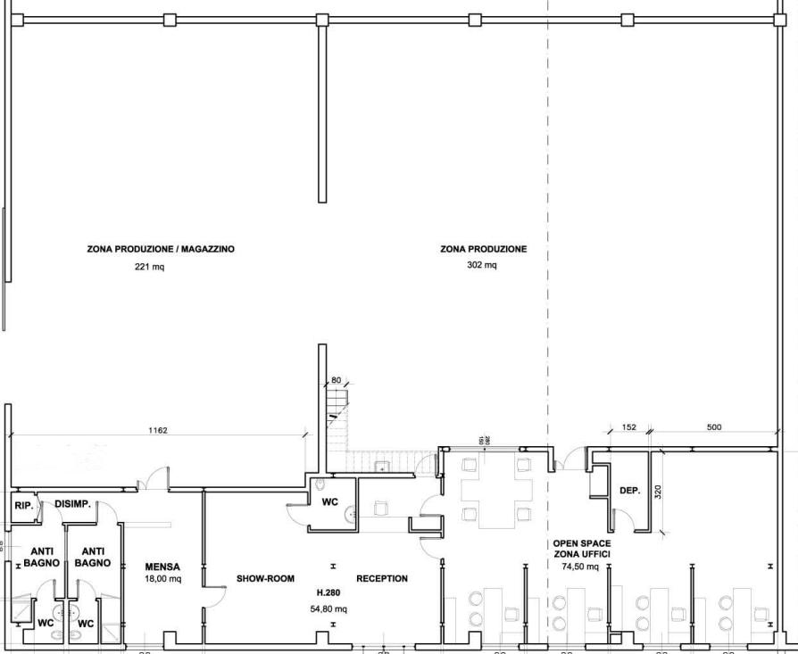
Porzione di capannone, cat.D/1, ristrutturata, di c.a. 750 mq, oltre soppalco di c.a. 205 mq.
Il complesso è composto da un´area di produzione di c.a. 523 mq, con altezza 5,5 mt sottotrave (altezza massima 7,50 mt) ed apertura carrabile posta sul lato.
L´ala uffici di c.a. 233 mq, attigua al capannone produzione, è stata rimodulata con a servizio bagni, locale mensa, reception e show room open space (vedasi elaborati).
Attraverso scala interna si accede alla zona soppalco, con altezza 3,15 mt, attualmente open space.
Completa la proprietà una corte esterna asfaltata e recintata di c.a. 980 mq, con accesso carrabile privato.

STATO E FINITURE
Gli interventi hanno riguardato aspetti estetici del prefabbricato (tinteggiatura), nonché aspetti funzionali dell´area produttiva (impianti elettrici di nuova generazione e nuova pavimentazione).
L´intero comparto uffici è stato completamente ristrutturato.

SPECIFICHE
Antincendio/estintori. Fogna collettore ASI. Videosorveglianza interna ed esterna. Corte asfaltata con raccolta acque di prima pioggia. Cancello elettrico.

UTILIZZO E POTENZIALITA´
Per posizione e stato dei luoghi, risulta essere un opificio altamente performante.
Buon equilibrio tra area di produzione, servizi, ala uffici e con corte esterna.

* Le presenti informazioni non costituiscono elemento contrattuale, dovranno essere verificate in ogni caso.

Per tutte le soluzioni in vendita, potete visitare il nostro sito www.gruppoempireimmobiliare.it



  • PropostaOffro
  • ContrattoVendita
  • Prezzo570.000,00 €
  • Numero piani2
  • Mq totali750
  • Bagni3
  • Classe energeticaG
  • Classe energetica (ipe)268.0
  • StatoRistrutturato
  • AscensoreNo
  • TerrazzoNo
  • GiardinoNs
  • CantinaNo
  • ProvinciaFrosinone
  • ComuneFrosinone
  • IndirizzoVia asi
  • CodiceEA-49F9CE