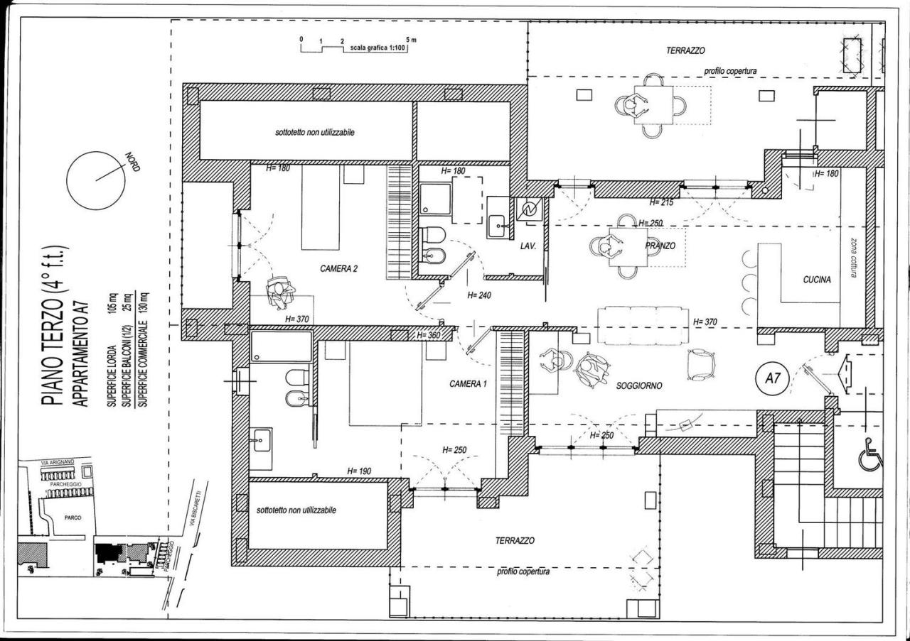
Via Biscaretti Roaschia - Corso Torino quadrilocale 130mq

Dati annuncio : Vendita Quadrivani, Chieri
Prezzo €. 364.000, 00 oltre iva Consegna prevista Novembre 2026Distribuzione spazi: Ingresso, soggiorno zona pranzo, due camere e doppi servizi, due terrazzi e balcone oltre cantina.Nuova Costruzione in Classe A - Palazzino ´´A´´Zona Residenziale-Vendesi appartamenti di nuova costruzione situati in una tranquilla zona residenziale. Questo stabile, progettato per il massimo comfort e efficienza energetica, è in classe A e offre diverse caratteristiche innovative:- Pannelli Fotovoltaici: L´energia prodotta sarà suddivisa tra le unità con una potenza di 2 kW, senza accumulo.- Riscaldamento a Pavimento: Dotato di pompa di calore individuale, per un riscaldamento ottimale e sostenibile.- Rifiniture di Alta Qualità: Gli appartamenti presentano ottime rifiniture, curate nei minimi dettagli.Tutti i contenuti presenti nell´annuncio non costituiscono ne presupposti ne elementi contrattuali. Classe Energetica: A1.
- PropostaOffro
- ContrattoVendita
- Prezzo364.000,00 €
- Anno2024
- Vani4
- Mq totali130
- Camere4
- Bagni2
- Posti auto1
- StatoOttime condizioni
- AscensoreSi
- Terrazzo1
- ArrediNon arredato
- ProvinciaTorino
- ComuneChieri
- IndirizzoVia biscaretti
- Data12-12-2025 05:05:48
- CodiceEA-A370B4






