Via Biscaretti Roaschia - Corso Torino trilocale 119mq

Dati annuncio : Vendita Trivani, Chieri
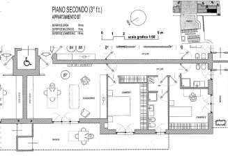
Esclusivo Appartamento di Nuova Costruzione a Chieri - Consegna a breve Nella prestigiosa Via Biscaretti a Chieri, sorge un´opportunità unica per chi cerca l´eccellenza abitativa. All´interno di un moderno complesso residenziale di nuova costruzione, presentiamo l´ultima disponibilità: l´unità B7 nella Palazzina B.Dettagli dell´AppartamentoSituato al secondo piano con ascensore, questo appartamento offre un´elegante distribuzione degli spazi:Ampio soggiorno con angolo cottura: Un ambiente luminoso e accogliente, perfetto per momenti di relax e convivialità.Due camere da letto: Spaziose e confortevoli, ideali per garantire la massima privacy.Doppi servizi finestrati: Funzionali e ben illuminati, pensati per il massimo comfort quotidiano.L´immobile vanta inoltre un ampio balcone e un generoso terrazzo, garantendo luminosità naturale e spazi esterni ideali per godersi il sole e l´aria aperta. Completa la proprietà una cantina di pertinenza.Personalizzazione e ComfortHai la possibilità di personalizzare gli interni scegliendo tra una vasta gamma di materiali per rendere ogni ambiente unico e in linea con i tuoi gusti. La palazzina è stata progettata con un´attenzione particolare al risparmio energetico e al comfort abitativo, offrendo:Classe Energetica A: Un indice di massima efficienza energetica, per un significativo risparmio sui consumi.Pannelli fotovoltaici: L´energia prodotta sarà distribuita direttamente alle singole unità, promuovendo un approccio sostenibile.Riscaldamento a pavimento con pompa di calore autonoma: Comfort termico uniforme e gestione indipendente della temperatura.Predisposizione per aria condizionata e antifurto: Per un comfort aggiuntivo e una maggiore sicurezza.Rifiniture di alta qualità: Ogni dettaglio è curato per assicurare un ambiente elegante e durevole.Ulteriori VantaggiÈ disponibile la possibilità di acquistare un box auto al piano interrato, comodamente accessibile tramite ascensore che arriva direttamente al piano -1.La consegna è prevista a breveNon perdere l´occasione di vivere in un appartamento che unisce design moderno, comfort e sostenibilità in una delle zone più ambite di Chieri.Immobile soggetto a IVATutti i contenuti presenti nell´annuncio non costituiscono né presupposti né elementi contrattuali.
- PropostaOffro
- ContrattoVendita
- Prezzo309.000,00 €
- Anno2024
- Vani3
- Mq totali119
- Camere3
- Bagni2
- Posti auto1
- StatoOttime condizioni
- AscensoreSi
- Terrazzo1
- ArrediNon arredato
- BoxBox singolo
- ProvinciaTorino
- ComuneChieri
- IndirizzoVia biscaretti
- Data12-12-2025 05:05:48
- CodiceEA-4DEDC7








