Via Casalinaccio 50000mq
Dati annuncio : Vendita Terreni, Roccantica
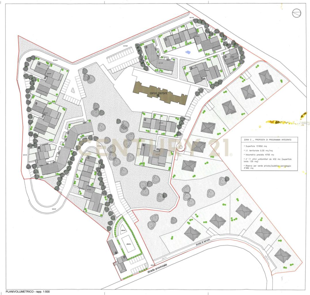
In vendita terreno edificabile di 5 ettari complessivi che costituisce il complesso residenziale Belcolle. Ubicato nel territorio del comune di Roccantica, in prossimità del caratteristico paese di impronta medievale, l’insediamento è costituito da alcuni edifici già costruiti ad uso turistico ricettivo e da edifici destinati alla residenza stabile.
8 ville sono già state edificate e sono solo da terminare, altri 1.600 mq di edifici residenziali sono stati progettati e approvati, mentre altri 10 villini sono ancora in fase di approvazione.
Tra le strutture già edificate troviamo complessivamente:
• 878.75 mq di superficie interna
• 1.400 mq di garage
• 1300mq accessi e rampe
• 79 mq portici
Pochi minuti d’auto lo separano dalla stazione ferroviaria e dal casello autostradale.
- PropostaOffro
- ContrattoVendita
- Prezzo4.500.000,00 €
- Numero piani1
- Mq totali50000
- Classe energeticaG
- Classe energetica (ipe)175.0
- StatoIn costruzione
- AscensoreNo
- TerrazzoNo
- GiardinoNs
- CantinaNo
- ProvinciaRieti
- ComuneRoccantica
- IndirizzoVia casalinaccio
- CodiceEA-719350






