Via Cavalcavia quadrilocale 167mq
Dati annuncio : Vendita Quadrivani, Cesena
CESENA - CENTRALE : W(e)AREHOUSE - esclusivi appartamenti di nuova costruzione.
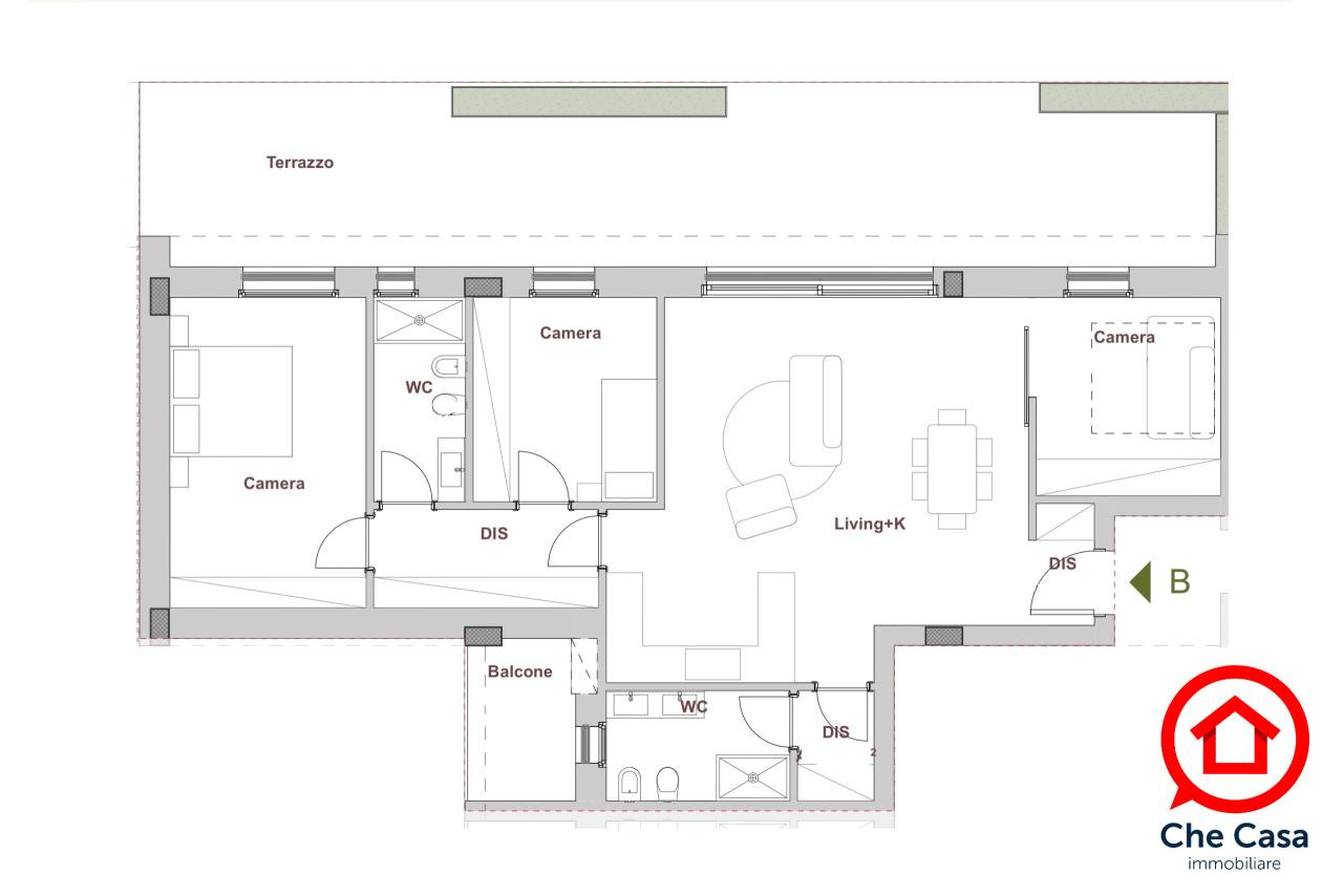
Soluzione B/piano secondo ed ultimo : Ingresso su ampio e luminoso open space di circa 40 mq calpestabili, con grande porta finestra scorrevole che apre su loggia terrazzo abitabile di circa 50 mq. Ideale per barbecue, pranzi cene e relax estivi. Antibagno e bagno finestrato a servizio zona giorno, con balcone ideale per zona lavanderia e ripostiglio. Questa soluzione è particolarmente interessante poiché il soffitto di tutta la casa è a volta, con un altezza minima di metri 3,00 fino al colmo di metri 4,70. La zona notte offre tre camere da letto: una padronale e due singole. Secondo bagno finestrato a servizio zona notte. Si completa di garage.
In posizione defilata dal traffico e lontana dal rumore, adiacente a tutti i servizi e con la città storica raggiungibile in passeggiata, Il progetto W(e)AREHOUSE è stato sviluppato con il preciso intento di offrire una dimora di prestigio, in grado di trasmettere un forte senso di esclusività attraverso scelte mirate di carattere sia formale che funzionale.
L’edificio nasce all’interno di contesto di riqualificazione urbana che prevede la trasformazione tramite la demolizione e ricostruzione di un fabbricato industriale insediato in un contesto residenziale. La qualità architettonica è sottolineata da scelte stilistiche estremamente moderne, eleganti ed essenziali, che vestono con gusto volumi armonici e proporzionati.Confort, tecnologia e qualità pongono ogni alloggio ad un livello di eccellenza.
Struttura portante in cemento armato, blocco termico, tetto in legno isolato da lana di roccia, isolamento acustico tramite materiale fonoassorbente nei tramezzi, nelle pareti divisorie tra le unità abitative, nei solai ecc. Pompa di calore elettrica, riscaldamento a pavimento, impianto fotovoltaico. Un capitolato ricercato ed una vasta scelta dei materiali sono a vostra disposizione.
Massimo risparmio energetico, classe energetica A4, probabile raggiungimento della classificazione NZEB
Per info e prenotazioni contatti il 393.8797904
- PropostaOffro
- ContrattoVendita
- Prezzo399.000,00 €
- Anno2024
- Vani4
- Numero piani1
- Mq totali167
- Camere3
- Bagni2
- Classe energeticaA+
- Classe energetica (ipe)0.0
- StatoNuovo
- AscensoreSi
- TerrazzoSi
- GiardinoNs
- CantinaNo
- RiscaldamentoFotovoltaico
- ProvinciaForli-cesena
- ComuneCesena
- IndirizzoVia cavalcavia
- Data18-08-2025 05:07:34
- CodiceEA-60C997











