Via Cristoforo Colombo 63 5 vani 175mq
Dati annuncio : Vendita Pentavani, Narzole
A Narzole porzione di casa da ultimare con possibilità di personalizzazione degli spazi e delle finiture.
Situata in una zona tranquilla e ben collegata questa soluzione offre la libertà di progettare gli interni su misura, scegliendo la disposizione degli ambienti e i materiali di finitura secondo il proprio gusto e le proprie esigenze.
L´immobile offre ampie dimensioni e una distribuzione funzionale, sviluppandosi su più piani con molta luce naturale grazie alle grandi finestre presenti
Al primo piano, la zona giorno è un grande openspace, ideale per un ambiente accogliente e sociale. Due camere da letto spaziose garantiscono comfort e adattabilità, mentre i servizi completano il piano in modo pratico.
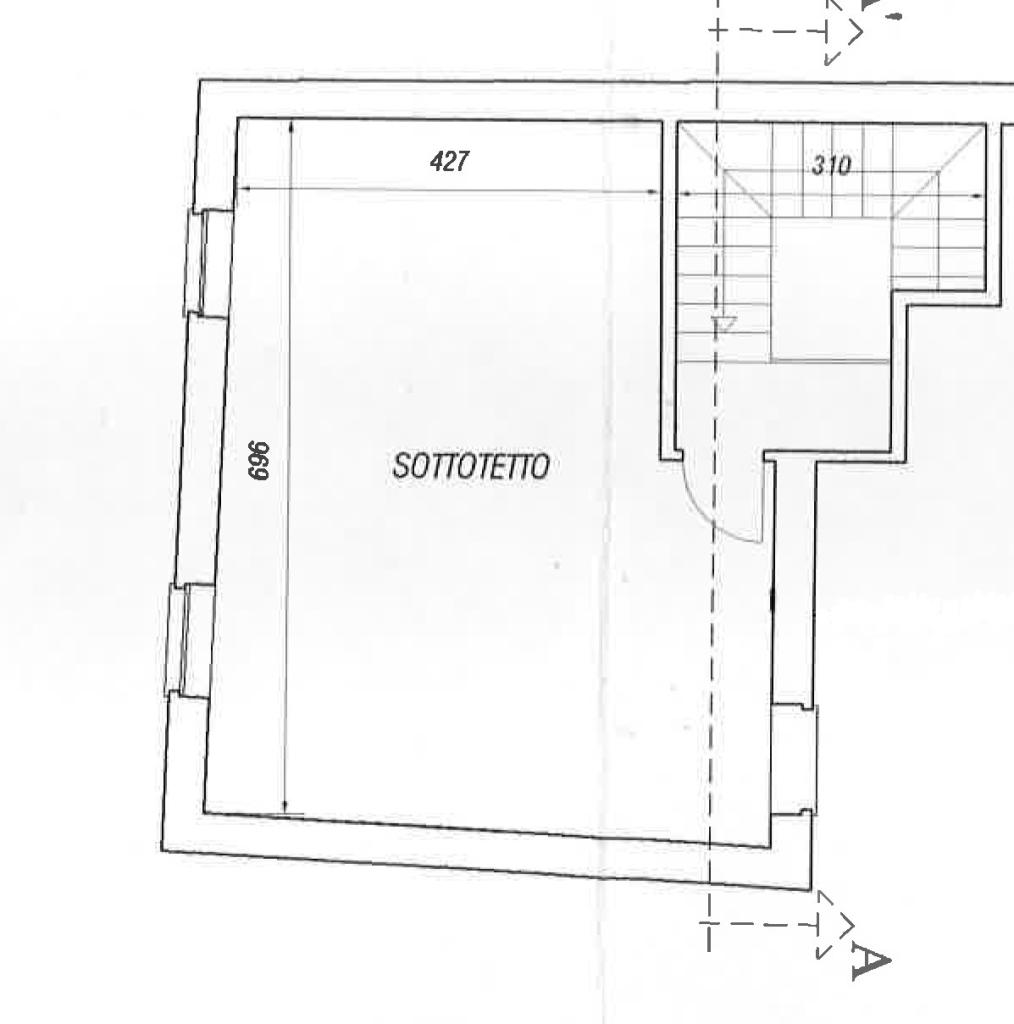
La soffitta al piano secondo rappresenta un ulteriore spazio da sfruttare secondo le proprie necessità, ideale per ripostigli o ambienti aggiuntivi.
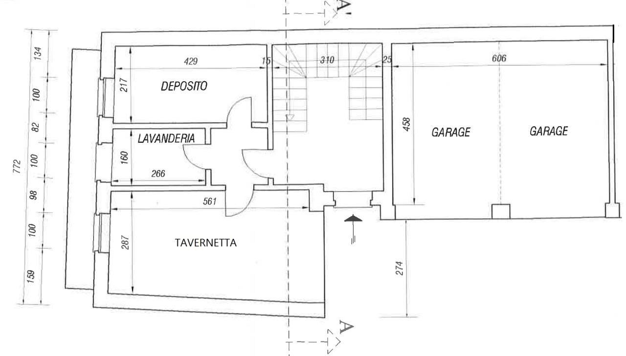
Dalla corte comune si raggiunge il garage doppio, la tavernetta con annesso bagno lavanderia e un locale deposito, perfetto per gestire ogni bisogno di spazio.
Una scala esterna conduce alla suggestiva cantina. Completa la proprietà un terreno privato, un angolo di tranquillità dove rilassarsi e godere della propria privacy.
Questa soluzione offre un´ottima opportunità per realizzare la propria idea di casa, con la possibilità di scegliere finiture, materiali e dettagli in linea con il proprio stile.
L’agenzia immobiliare Dotta si distingue da anni nel panorama territoriale grazie all’estrema serietà e competenza dello staff. È parte della nostra missione accompagnare il cliente nel processo di valutazione e scelta dell’immobile più confacente alle proprie aspettative e necessità.
Contattaci subito per visionare insieme questa casa nelle Langhe. Saremo lieti di accompagnarti alla proprietà senza alcun impegno, con cortesia e professionalità.
www.dottaimmobiliare.it
- PropostaOffro
- ContrattoVendita
- Prezzo65.000,00 €
- Anno2025
- Vani5
- Numero piani4
- Mq totali175
- Camere2
- Bagni1
- Classe energeticaVa
- Classe energetica (ipe)0.0
- StatoIn costruzione
- AscensoreNo
- CucinaAbitabile
- TerrazzoNo
- GiardinoNs
- CantinaSi
- ProvinciaCuneo
- ComuneNarzole
- IndirizzoVia cristoforo colombo 63
- CodiceEA-1FB648






