Via Cristoforo Colombo 63 5 vani 190mq
Dati annuncio : Vendita Pentavani, Narzole
In una zona tranquilla e ben collegata di Narzole, proponiamo una porzione di casa da ultimare, con la possibilità di personalizzare gli spazi e le finiture in base alle proprie esigenze e preferenze. Questa soluzione offre ampie possibilità di progettazione, permettendo di adattare gli interni a proprio piacimento, sia nella disposizione degli ambienti che nella scelta dei materiali di rifinitura.
L´immobile si sviluppa su più livelli e garantisce una distribuzione funzionale degli spazi, con abbondante luce naturale grazie alle ampie finestre presenti. Al primo piano si trova la zona abitativa, composta da un’accogliente zona giorno open space, con accesso diretto al balcone, ideale per godersi momenti di relax all´aperto. Due camere da letto spaziose e doppi servizi completano il piano, offrendo comfort e praticità. Un terrazzo coperto impreziosisce la proprietà.
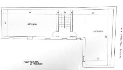
Al secondo piano, la soffitta rappresenta un´opportunità in più per sfruttare lo spazio, adattandolo a seconda delle proprie necessità, come ripostiglio o ambienti aggiuntivi.
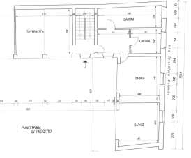
Dalla corte comune, si accede al garage doppio, perfetto per chi cerca ampio spazio per parcheggiare. A completare la proprietà, una spaziosa tavernetta, ideale per momenti conviviali con amici e famiglia, e due locali uso cantina, per organizzare al meglio gli spazi di stoccaggio.
Una soluzione ideale per chi cerca un’abitazione su misura in una zona tranquilla ma ben servita.
L’agenzia immobiliare Dotta si distingue da anni nel panorama territoriale grazie all’estrema serietà e competenza dello staff. È parte della nostra missione accompagnare il cliente nel processo di valutazione e scelta dell’immobile più confacente alle proprie aspettative e necessità.
Contattaci subito per visionare insieme questa casa nelle Langhe. Saremo lieti di accompagnarti alla proprietà senza alcun impegno, con cortesia e professionalità.
www.dottaimmobiliare.it
- PropostaOffro
- ContrattoVendita
- Prezzo105.000,00 €
- Anno2025
- Vani5
- Numero piani3
- Mq totali190
- Camere2
- Bagni1
- Classe energeticaVa
- Classe energetica (ipe)0.0
- StatoIn costruzione
- AscensoreNo
- CucinaAbitabile
- TerrazzoSi
- GiardinoNs
- CantinaSi
- BoxSi
- ProvinciaCuneo
- ComuneNarzole
- IndirizzoVia cristoforo colombo 63
- CodiceEA-A72021






