Via del Campo 100mq
Dati annuncio : Vendita Case, Ferentino
POSIZIONE
Ferentino, nei pressi dell´Antares, ex Punto Verde. A poche centinaia di metri da Via Casilina (Terme di Pompeo).
In posizione pianeggiante ed assolata.
In zona residenziale costituita principalmente da soluzioni in villa.
DESCRIZIONE
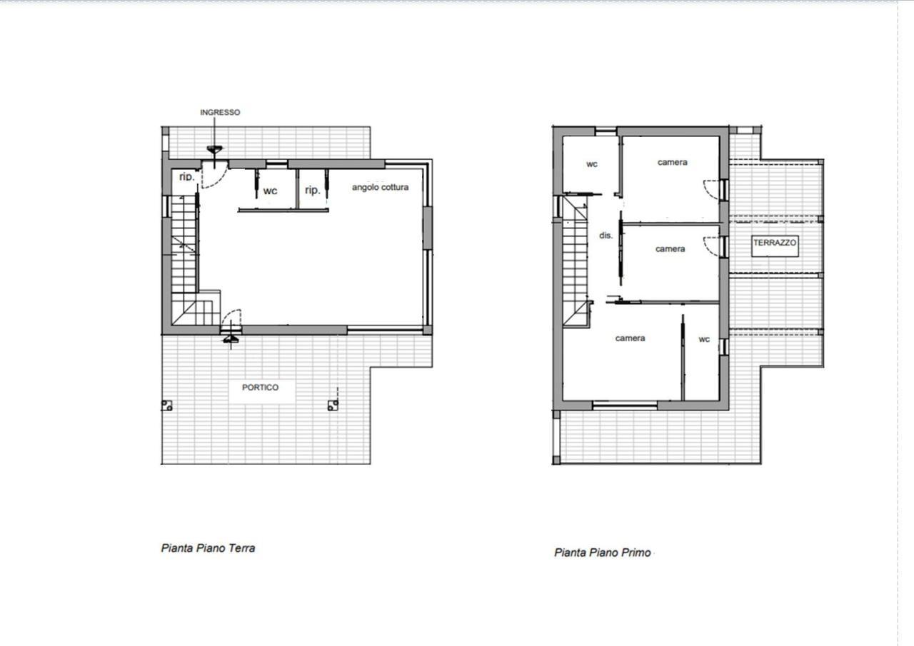
Soluzione indipendente (civile abitazione), di complessivi 100 mq c.a., con annesso terreno esclusivo di c.a. 2.500 mq.
E´ stata allegata un´ipotesi di progetto.
STATO E FINITURE
Fabbricato ante ´42, da ristrutturare completamente.
Possibilità di demolire e ricostruire la proprietà, per realizzare una villa singola su unico livello, oppure su due piani. Realizzando una soluzione di nuova generazione si può aumentare la cubatura del 10% circa, con a servizio anche portici, terrazzi e verande.
UTILIZZO E POTENZIALITA´
Ottima soluzione per coloro che desiderano realizzare una soluzione personalizzata, in base ai propri gusti ed alle proprie esigenze abitative, sfruttando anche gli spazi esterni.
* Le presenti informazioni non costituiscono elemento contrattuale, dovranno essere verificate in ogni caso.
Per tutte le soluzioni in vendita, potete visitare il nostro sito www.gruppoempireimmobiliare.it
- PropostaOffro
- ContrattoVendita
- Prezzo53.000,00 €
- Numero piani2
- Mq terrazzo45
- Mq totali100
- Camere3
- Bagni3
- Classe energeticaNa
- Classe energetica (ipe)0.0
- AscensoreNo
- CucinaAngolo cottura
- TerrazzoSi
- GiardinoNd
- CantinaNo
- ProvinciaFrosinone
- ComuneFerentino
- IndirizzoVia del campo
- CodiceEA-1A254A






