Via della Cisa bilocale 900mq
1,00 €
0 Piace
0 Piace
Dati annuncio : Vendita Bivani, Santo Stefano di Magra
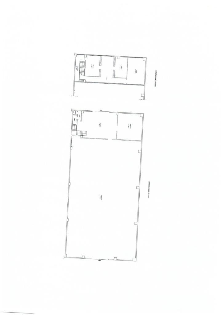
Vendesi capannone di mq. 800 con uffici al piano superiore di mq. 100, con possibilità di installare carroponte. Le condizioni sono ottime, tetto in ordine.
Piazzale esterno condominiale.
- PropostaOffro
- ContrattoVendita
- Prezzo1,00 €
- Vani2
- Numero piani1
- Mq totali900
- Classe energeticaVa
- Classe energetica (ipe)0.0
- StatoBuono
- AscensoreNo
- TerrazzoNo
- GiardinoNs
- CantinaNo
- ProvinciaLa spezia
- ComuneSanto stefano di magra
- IndirizzoVia della cisa
- Data24-09-2025 06:15:13
- CodiceEA-DC0E9A




