E' in corso la verifica sull'accuratezza dei dati del post
Via delle Rose trilocale 100mq
1.700,00 €
0 Piace
0 Piace
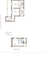
Dati annuncio : Affitto Trivani, Bologna
Giardini Margherita - Via delle rose
In signorile stabile con ascensore appartamento su due livelli completamente arredato con affacci sul verde. Ingresso, soggiorno, cucinotto, due camere, doppi servizi, soppalco uso studio, lavanderia, terrazza e posto auto privato. Riscaldamento centralizzato con contacalorie. Libero dal luglio. La proprietà non prende in considerazione contratti con studenti, contratti brevi, e contratti per b&b.
- PropostaOffro
- ContrattoAffitto
- Prezzo1.700,00 €
- Anno1960
- Vani3
- Numero piani3
- Mq terrazzo15
- Mq totali100
- Camere2
- Bagni2
- Classe energeticaVa
- Classe energetica (ipe)0.0
- StatoBuono
- AscensoreSi
- CucinaCucinotto
- TerrazzoSi
- GiardinoNd
- CantinaNo
- RiscaldamentoContacalorie
- ArrediArredato
- BoxSi
- Spese condominiali300.0
- ProvinciaBologna
- ComuneBologna
- IndirizzoVia delle rose
- CodiceEA-5DCFD0