E' in corso la verifica sull'accuratezza dei dati del post
Via Don L. Orione 115 trilocale 150mq
1.200,00 €
0 Piace
0 Piace
Dati annuncio : Affitto Trivani, Bra
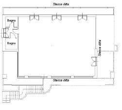
LOCALE COMMERCIALE FRONTESTRADA CON AMPIO SPAZIO VETRINATO
Affacciato su arteria di grande passaggio, da Bra in direzione Torino, proponiamo locale commerciale di circa circa 140mq, moderno caratterizzato da quattro ampie vetrine di cui una angolare con doppio servizio.
Il riscaldamento è autonomo a pavimento, con pannelli solari ed inoltre il locale è climatizzato ed è dotato di domotica per il comando dei serramenti esterni
Il locale si trova al piano rialzato accessibile da elegante scala in pietra.
Antistante il fabbricato esiste la diponibilità di molti parcheggio posti all´esterno della recinzione della proprietà
Non vi sono spese condominiali
Immobile indicato per Farmacie, uffici, e locali espositivi Ecc...
OTTIMA OPPORTUNITA´
- PropostaOffro
- ContrattoAffitto
- Prezzo1.200,00 €
- Anno2010
- Vani3
- Numero piani1
- Mq totali150
- Classe energeticaC
- Classe energetica (ipe)0.0
- StatoOttimo
- AscensoreNo
- TerrazzoNo
- GiardinoNs
- CantinaNo
- BoxSi
- ProvinciaCuneo
- ComuneBra
- IndirizzoVia don l. orione 115
- CodiceEA-4B52F9






