Via Don Tommaso Michelett 8 vani 1500mq
Dati annuncio : Vendita Multivani, Soave
CASTELLETTO, SOAVE: casa colonica su un lotto di terreno completamente indipendente di circa 1500 mq.
L´abitazione principale presenta una metratura di 200 mq circa e si sviluppa su 2 livelli. Al piano terra soggiorno ampio, cucina abitabile separata, cantina e prima camera/altro salone. Al piano primo altre 4 camere da letto matrimoniali e bagno.
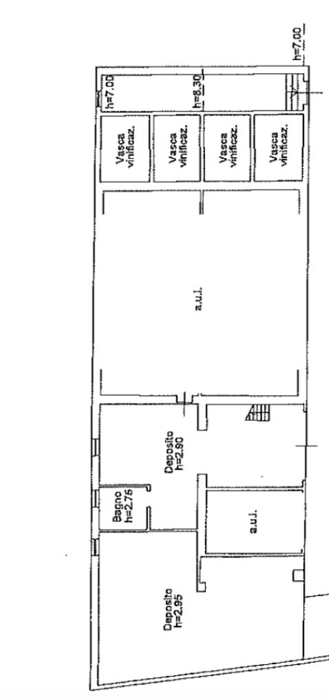
All´esterno, troviamo portico con fienile annesso di 500 mq su area coperta, che comprende vari depositi, un bagno e garage doppio.
A servizio della proprietà troviamo un ulteriore magazzino di circa 150 mq compreso di altri vari depositi.
Bellissima posizione pianeggiante molto tranquilla ma allo stesso tempo vicino ai principali servizi.
Il gruppo che gestisce l´agenzia MyHome Immobiliare opera ormai da diversi anni sulle province di Vicenza e di Verona.
Grazie alla nostra esperienza e preparazione siamo in grado di fornire servizi immobiliari a 360°.
Il nostro team crede fortemente nell’etica professionale, e il nostro obbiettivo è quello di soddisfare le esigenze immobiliari con affidabilità, trasparenza e serietà.
Sei alla ricerca della tua nuova casa o vuoi vendere la tua abitazione?
Rivolgiti al nostro team di esperti.
Ti aspettiamo nelle nostri sedi ad Arzignano (VI) in Via Trieste 20 e a San Bonifacio (VR) in Piazza Costituzione 31.
- PropostaOffro
- ContrattoVendita
- Prezzo305.000,00 €
- Anno1970
- Vani8
- Numero piani2
- Mq totali1500
- Camere4
- Bagni2
- Classe energeticaF
- Classe energetica (ipe)0.0
- StatoDiscreto
- AscensoreNo
- CucinaAbitabile
- TerrazzoNo
- GiardinoNd
- CantinaSi
- BoxSi
- ProvinciaVerona
- ComuneSoave
- IndirizzoVia don tommaso michelett
- CodiceEA-0AA1EB






