Via Giovanni Giminiani 155mq

99.000,00 €
0 Piace
0 Piace

Dati annuncio : Vendita Case, Anagni

POSIZIONE
Anagni, Via Giovanni Giminiani, in posizione ad alta visibilità, fronte strada.

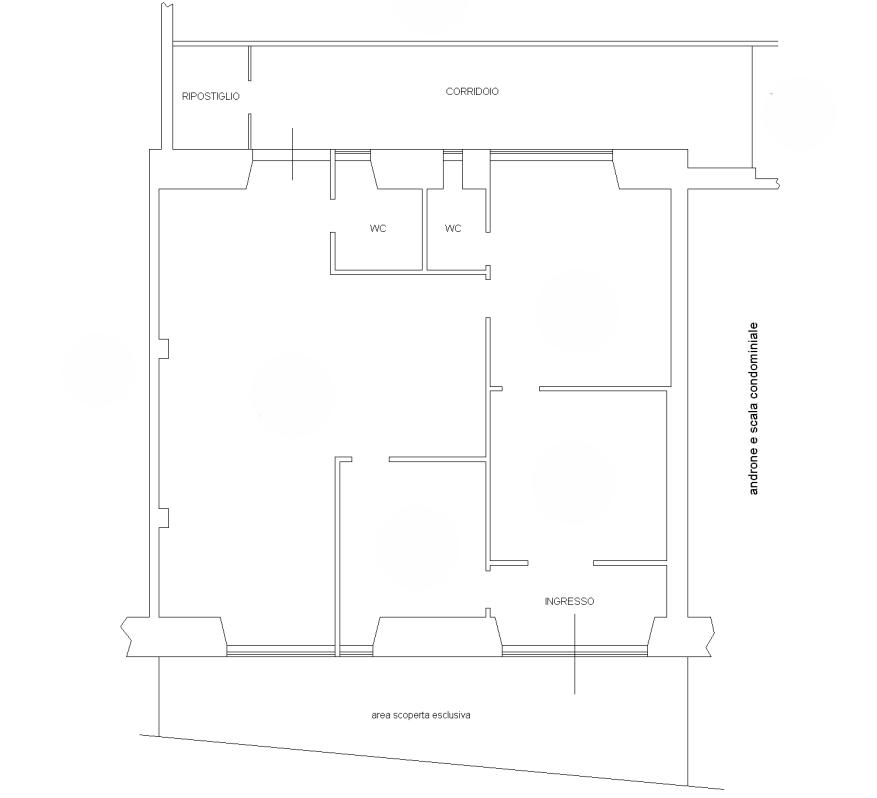
DESCRIZIONE
Ufficio posto al piano terra, fronte strada, di c.a. 155 mq complessivi.
Attualmente suddiviso in zona ingresso, quattro stanze ufficio, due bagni, ripostiglio e ampissimo corridoio, ideale per molteplici usi.
In relazione alla tipologia ed al pregresso uso, risulta essere adatto anche come locale commerciale.
Completa la proprietà un´area scoperta esclusiva nella parte antistante di c.a. 22,50 mq.

STATO E FINITURE
La proprietà risulta in buono stato di manutenzione. Possibilità di personalizzarla in base alle proprie esigenze professionali.

SPAZI ESTERNI
L´area privata attribuisce un valore aggiunto alla proprietà.

UTILIZZO E POTENZIALITA´
In virtù dell´ampia metratura e della posizione, risulta un´ottima opportunità immobiliare.

* Le presenti informazioni non costituiscono elemento contrattuale, dovranno essere verificate in ogni caso.

Per tutte le soluzioni in vendita, potete visitare il nostro sito www.gruppoempireimmobiliare.it

  • PropostaOffro
  • ContrattoVendita
  • Prezzo99.000,00 €
  • Numero piani1
  • Mq totali155
  • Classe energeticaG
  • Classe energetica (ipe)268.0
  • StatoBuono
  • AscensoreNo
  • TerrazzoNo
  • GiardinoNs
  • CantinaNo
  • ProvinciaFrosinone
  • ComuneAnagni
  • IndirizzoVia giovanni giminiani
  • CodiceEA-AF85CD