Via Giovanni Torti 1 6 vani 80mq
Dati annuncio : Vendita Esavani, Genova
GENOVA – SAN FRUTTUOSO | COMODITÀ E SERVIZI A PORTATA DI MANO
Nel cuore di San Fruttuoso, in Via Torti, a pochi passi da Piazza Martinez, proponiamo in vendita un quadrilocale di circa 80 mq, perfetto per chi desidera vivere in una zona comoda e servita, con tutto a portata di mano.
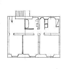
L’appartamento, situato al primo piano di un edificio in ottime condizioni con ascensore, offre spazi ben distribuiti e funzionali. L’ingresso conduce a due ampie camere da letto, una cucina abitabile e una zona giorno accogliente, che all’occorrenza può essere trasformata in una terza camera. Sono presenti due bagni, di cui uno di servizio, per una maggiore praticità nella vita quotidiana.
Grazie al riscaldamento autonomo, le spese di gestione sono contenute, mentre gli infissi nuovi in PVC con doppio vetro assicurano un eccellente isolamento termico e acustico, garantendo tranquillità e comfort.
La posizione è il vero punto di forza di questo immobile: i negozi, i supermercati, le farmacie e tutti i servizi essenziali si trovano nelle immediate vicinanze, rendendo la vita più semplice e organizzata. La zona è ben collegata dai mezzi pubblici e permette di raggiungere facilmente il centro città, l’ospedale San Martino e le principali strutture scolastiche e universitarie il che lo rende anche un ottimo investimento.
Se cerchi una casa comoda, funzionale e in una posizione strategica per avere tutto a portata di mano, questa è la soluzione perfetta. Contattaci per maggiori informazioni o per fissare una visita.
- PropostaOffro
- ContrattoVendita
- Prezzo130.000,00 €
- Anno1939
- Vani6
- Numero piani1
- Mq totali80
- Bagni1
- Classe energeticaVa
- Classe energetica (ipe)0.0
- StatoBuono
- AscensoreSi
- TerrazzoNo
- GiardinoNs
- CantinaSi
- ArrediArredato
- Spese condominiali60.0
- ProvinciaGenova
- ComuneGenova
- IndirizzoVia giovanni torti 1
- CodiceEA-DB4054






