Via Giuseppe Garibaldi trilocale 75mq

105.000,00 €
0 Piace
0 Piace

Villanova di Guidonia – Luminoso trilocale con balconi e ascensore in palazzina in cortina

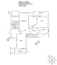
Proponiamo in vendita un trilocale di 75 mq situato al primo piano di una palazzina in cortina degli anni ´80, dotata di ascensore, in Via Garibaldi. L´immobile si presenta in buono stato e offre ambienti comodi e ben distribuiti.

Composizione:
Zona giorno: ingresso, ampio soggiorno luminoso e cucina abitabile con porta finestra per l’accesso al balcone, ideale per pranzi all´aperto o momenti di relax.
Zona notte: camera matrimoniale, cameretta, disimpegno e bagno finestrato con vasca.
Esterni: due balconi, uno con accesso dalla cucina e l’altro a servizio della zona notte.

Caratteristiche e dotazioni:
Riscaldamento autonomo per il massimo controllo dei consumi.
Infissi in PVC doppio vetro, che garantiscono isolamento termico e acustico.
Climatizzatori, per un comfort ottimale in tutte le stagioni.
Pavimenti in gres, resistenti e di facile manutenzione.
Libero da subito, pronto per essere abitato.

Soluzione ideale per famiglie, giovani coppie o per chi cerca un investimento abitativo in una zona ben servita.

Contattaci subito e fissa un appuntamento!
Puoi trovarci dal lunedì al venerdì dalle 9.00 alle 13.00 e dalle 15.30 alle 20.00 e il sabato dalle 9.00 alle 13.00
Chiamaci allo .10. . 38.11. 66. o scrivici su WhatsApp al. 342.17. 93.927
RIFERIMENTO ANNUNCIO: VA782


Vendi Casa? Contattaci per un appuntamento!
Offriamo:
-Valutazione gratuita e senza impegno, per conoscere il valore del tuo immobile.
-Un ampio database di clienti interessati all´acquisto di ogni tipo di proprietà.
-Un’ampia rete di comunicazione per promuovere al meglio il tuo immobile.
-Collaborazioni dirette con tecnici, periti, notai, consulenti finanziari, ristrutturatori e traslocatori per accompagnarti in ogni fase della vendita.

  • PropostaOffro
  • ContrattoVendita
  • Prezzo105.000,00 €
  • Anno1980
  • Vani3
  • Numero piani1
  • Mq totali75
  • Camere2
  • Bagni1
  • Balconi2
  • Classe energeticaG
  • Classe energetica (ipe)175.0
  • StatoBuono
  • AscensoreSi
  • CucinaAbitabile
  • TerrazzoNo
  • GiardinoNs
  • CantinaNo
  • RiscaldamentoAutonomo
  • Spese condominiali30.0
  • ProvinciaRoma
  • ComuneGuidonia montecelio
  • IndirizzoVia giuseppe garibaldi
  • CodiceEA-27C696