via Luigi Einaudi monolocale 350mq
Dati annuncio : Vendita Monovano, Fano
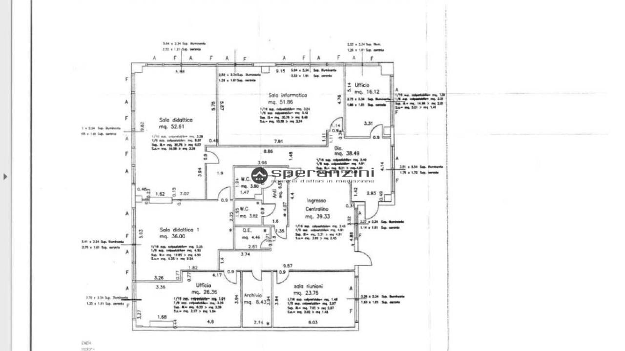
BELLOCCHI: Fano - bellocchi, si presenta un´opportunità unica per gli investitori interessati all´acquisto di un ufficio a reddito. situato al primo e ultimo piano, questo ufficio spazioso e luminoso si estende su una superficie di circa 350 mq. gli impianti sono completamente conformi alle normative vigenti, garantendo un´efficienza energetica ottimale e un ambiente di lavoro confortevole. le pareti attrezzate offrono flessibilità e praticità per organizzare lo spazio secondo le esigenze individuali. questo immobile rappresenta un ottimo investimento grazie alla sua ubicazione strategica e alla possibilità di generare un reddito stabile. con una rendita promettente, si presenta come una scelta intelligente per coloro che cercano opportunità di investimento solide e redditizie nel settore immobiliare commerciale. Classe Energetica: G - IPE: 175.00kWh/mc anno
- PropostaOffro
- ContrattoVendita
- Prezzo370.000,00 €
- Vani1
- Numero piani2
- Piano13
- Mq totali350
- Camere2
- Bagni2
- Classe energeticaG
- Classe energetica (ipe)175.0
- StatoOttimo
- AscensoreSi
- Tipo costruzioneCommerciale
- TerrazzoNo
- GiardinoNessuno
- CantinaNo
- RiscaldamentoAutonomo
- ArrediNon arredato
- DisponibilitLibero
- ProvinciaPesaro e urbino
- ComuneFano
- IndirizzoVia luigi einaudi
- Data18-08-2025 06:03:15
- CodiceEA-C52C59











