VIA MADRE DI TERESA DI CALCUTTA 700mq
Dati annuncio : Vendita Case, Borgo Veneto
Immobile in esclusiva al Gruppo Padova MLS
BORGO VENETO
Proponiamo in vendita lotto di terreno edificabile sito in Comune di Borgo Veneto – Loc. Saletto, per un totale di Mq 698. Potenzialità edificatoria Mc/Mq 1,49 per un volume totale fuori terra pari a Mc 1.040,00, oltre a Mc 45,00 gratuiti per ogni garage.
Possibilità di realizzo:
1. Casa unifamiliare posta al piano terra più un soppalco per la superficie totale pari a Mq 237,00, di cui 216,50 al piano terra e Mq 20,50 di soppalco.
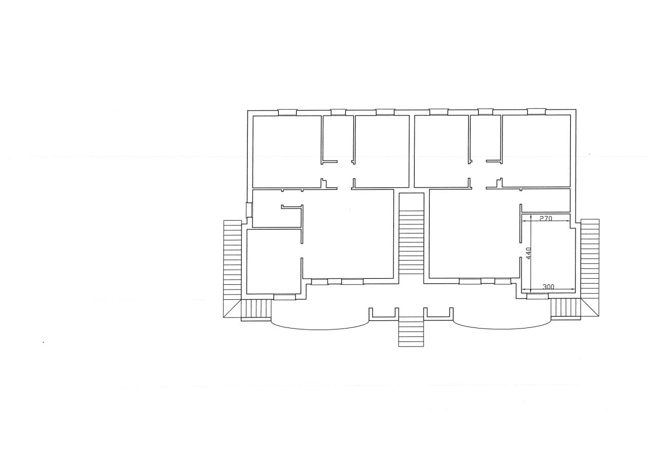
2. Casa bifamiliare accostata solo con i garage, da realizzarsi su due piani e composta dalla zona giorno e garage al piano terra e zona notte al piano primo. A tale fine si allega fac-simile del fabbricato solo a livello dimostrativo, in quanto lo stesso supera come volumetria quella consentita. Le due unità immobiliari avrebbero ingresso e giardino indipendente.
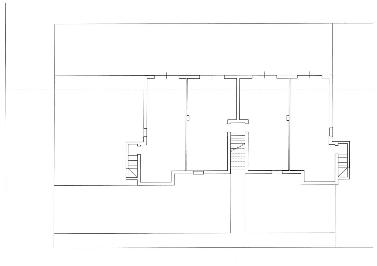
3. Realizzo di un fabbricato plurifamiliare composto da quattro appartamenti posti al piano rialzato e piano primo mentre al piano parzialmente interrato verrebbero realizzati i garage doppi o garage e locale ripostiglio. I garage degli appartamenti del piano rialzato sarebbero raggiungibili da una scala indipendente mentre per i garage del piano primo verrebbe utilizzata una scala comune ai due appartamenti . Tutti gli appartamenti avrebbero uno spazio verde indipendente. Le parti comuni sono l’accesso ai due appartamenti del piano primo e la rampa di accesso ai garage. La parte residenziale (appartamento) è pari a mq 89,00 mentre i garage mq 46,00 circa.
Per Maggiori informazioni non esitate a contattarci!!
D. Perchè vedo che la pubblicità di questo immobile è inserita anche da altre agenzie?
R. Semplice e trasparente : Questo è un immobile provvisto di regolare incarico da parte del venditore conferito a una sola agenzia del gruppo Padova MLS, che grazie all´esclusivo metodo di collaborazione consente, a tutte le agenzie aderenti, di ampliare e potenziare la visibilità dello stesso. Tale attività è debitamente regolamentata tra l´agenzia detentrice del mandato da parte del Venditore e le agenzie autorizzate a proporlo.
D. Cosa cambia quindi per chi cerca casa?
R. Grazie a questo servizio il cliente potrà ricercare senza limiti territoriali la casa desiderata con l´assistenza di un UNICO INTERLOCUTORE, che potrà aiutarlo e consigliarlo nella scelta tra TUTTI gli immobili disponibili nella rete di agenzie che si avvalgono di questo sistema di lavoro, riducendo i tempi di una affannosa ricerca e di continua richiesta di informazioni, e il venditore vede amplificata la promozione del suo immobile.
- PropostaOffro
- ContrattoVendita
- Prezzo55.000,00 €
- Numero piani1
- Mq totali700
- Classe energeticaNa
- Classe energetica (ipe)0.0
- AscensoreNo
- TerrazzoNo
- GiardinoNs
- CantinaNo
- ProvinciaPadova
- ComuneBorgo veneto
- IndirizzoVia madre di teresa di calcutta
- Data04-09-2025 05:31:17
- CodiceEA-722194








