Via Mantova trilocale 90mq
Dati annuncio : Vendita Trivani, Peschiera del Garda
Trilocale di Nuovissima Costruzione prevista per il 2026 a Peschiera del Garda
Proprio a Peschiera del Garda, a due passi dal centro storico e dal lago, proponiamo in vendita un magnifico trilocale di nuovissima costruzione, con consegna prevista per la primavera 2026. Questo appartamento, certificato in classe energetica A3 minima garantita, offre un elevato standard di efficienza energetica e comfort.
Descrizione dell’Appartamento:
Contesto Esclusivo
Il contesto si compone di sole 4 unità completamente indipendenti, garantendo massima privacy e tranquillità. Ogni appartamento ha un ingresso privato con collegamento interno diretto alla casa.
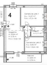
Composizione Interna
L’appartamento proposto, situato al piano primo ed ultimo con 4 lati liberi ed è così composto:
• Ampia zona living con cucina open space
• Due ampie camere da letto
• Bagno finestrato con possibilità di inserimento di un secondo bagno
Spazi Esterni e Accessori
• Posto auto coperto privato
• Posto auto scoperto (aggiuntivo opzionale)
• Cantina
- ampio terrazzo
Caratteristiche e Finiture
Materiali di Alta Qualità
La struttura è pensata e costruita in modo responsabile e confortevole, ponendosi a un livello superiore rispetto al resto del mercato. I materiali scelti garantiscono un ottimo isolamento termico e acustico.
Efficienza Energetica
Grazie ai pannelli fotovoltaici, la classe energetica dell’appartamento è posizionata in A3/A4, assicurando un eccellente risparmio energetico ed economico, con grande rispetto per l’ambiente.
Questo trilocale rappresenta un’opportunità unica per chi desidera vivere in un ambiente moderno, efficiente e di alta qualità, in una delle zone più affascinanti di Peschiera del Garda. Contattaci per maggiori informazioni e per organizzare una visita. Non perdere l’occasione di scoprire questa esclusiva proprietà.
- PropostaOffro
- ContrattoVendita
- Prezzo310.000,00 €
- Anno2026
- Vani3
- Numero piani1
- Mq box14
- Mq totali90
- Camere2
- Bagni1
- Classe energeticaA+
- Classe energetica (ipe)0.0
- StatoNuovo
- AscensoreNo
- CucinaAbitabile
- TerrazzoNo
- GiardinoNs
- CantinaNo
- RiscaldamentoAutonomo
- BoxSi
- ProvinciaVerona
- ComunePeschiera del garda
- IndirizzoVia mantova
- CodiceEA-1CB0DB






