via Monstagol quadrilocale 320mq
Dati annuncio : Vendita Quadrivani, Soiano del Lago
NUOVA VILLA VISTA LAGO CON PISCINA PRIVATA
In zona residenziale con splendida vista panoramica, a Soiano del Lago sta per nascere una moderna villa indipendente disposta su due livelli.
Il progetto, già approvato, prevede spazi ampi e luminosi, con zona giorno open space, cucina a vista e grandi vetrate che si affacciano su un terrazzo angolare con vista lago mozzafiato. Completa il piano principale un comodo bagno di servizio.
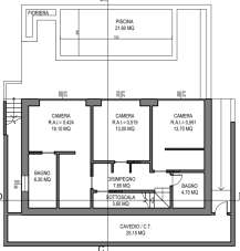
Il piano inferiore ospita la zona notte, composta da una spaziosa camera padronale con bagno en suite, altre due camere, un secondo bagno e locale tecnico sito in un funzionale cavedio, ideale anche come ripostiglio.
All’esterno, giardino su tre lati, piscina privata e due posti auto coperti a livello strada.
La villa si distingue per l’alta efficienza energetica, le finiture di pregio e l’ampia possibilità di personalizzazione.
Una soluzione esclusiva, perfetta per chi cerca comfort moderno e panorama sul lago.
- PropostaOffro
- ContrattoVendita
- Prezzo1.400.000,00 €
- Anno2026
- Vani4
- Numero piani2
- Mq totali320
- Camere3
- Bagni3
- Posti auto2
- Classe energeticaA+
- Classe energetica (ipe)0.0
- StatoIn costruzione
- AscensoreNo
- TerrazzoNo
- GiardinoNd
- CantinaNo
- PanoramaVista lago
- BoxSi
- ProvinciaBrescia
- ComuneSoiano del lago
- IndirizzoVia monstagol
- Data18-11-2025 06:44:04
- CodiceEA-706444











