Via Niccolò Tommaseo 100 6 vani 144mq
Dati annuncio : Vendita Esavani, Rimini
Scopri il tuo nuovo rifugio a Bellariva di Rimini!
Aimmobiliare è lieta di presentare in esclusiva un incantevole appartamento in classe energetica
A4, situato al secondo e ultimo piano di una palazzina completamente ristrutturata in maniera
integrale e pari al nuovo, con gusto e attenzione ai dettagli.
Questo splendido immobile si sviluppa su due livelli, offrendo spazi ampi e luminosi, perfetti per
una vita moderna e confortevole.
Caratteristiche principali:
Primo livello: accogliente ingresso che conduce a un luminoso soggiorno con angolo cottura, ideale
per momenti di convivialità. Due camere da letto spaziose e un bagno elegante completano questo
piano, insieme a un terrazzo perfetto per godersi il sole o l’aria fresca.
Secondo livello: una comoda scala conduce a un’area versatile, con bagno/lavanderia e sottotetto
con travi a vista, perfetto da adibire a terza camera o studio. Qui si trova anche un ulteriore terrazzo,
ideale per rilassarsi in totale privacy o per delle belle cene in compagnia.
Efficienza e comfort abitativo:
L’appartamento, in classe A4, è dotato di impianti di ultima generazione ad alta efficienza
energetica e di finiture di pregio.
È caratterizzato da sistemi autonomi a pompa di calore abbinati a impianto fotovoltaico, senza
allaccio alla rete del gas, per la produzione di acqua calda sanitaria e riscaldamento.
Ogni unità dispone inoltre di ventilazione meccanica controllata (VMC) per la gestione
dell’umidità interna, oltre che di pareti ed infissi ad alte prestazioni termo-acustiche, al fine di
garantire il massimo comfort abitativo e un concreto contenimento dei consumi energetici, nel
pieno rispetto dei principi “green” di sostenibilità ambientale.
Garage e comodità:
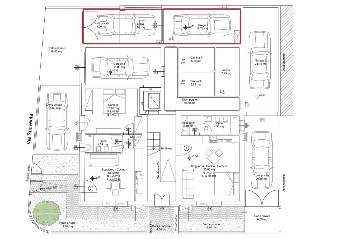
Completano la proprietà un ampio garage di 21 mq e un posto auto privato adiacente
all’ingresso. L´appartamento è dotato di tutti i comfort moderni: riscaldamento a pavimento,
pannelli fotovoltaici, predisposizione per la domotica, addolcitore dell´acqua e ascensore.
Non perdere l´opportunità di vivere in un contesto esclusivo e ben servito, a pochi passi dal mare. Contattaci per maggiori informazioni e per prenotare una visita!
Richiesta economica Euro 379.000
Aimmobiliare - La tua casa, il tuo futuro!
Rif. 4513
Per ulteriori informazioni , non esitare a contattare Roberto Montironi al 331 1865095 oppure al 0541 770608
L´appartamento verrà presentato a tutti gli interessati con il nostro OPEN HOUSE , SABATO MATTINA 29 NOVEMBRE DALLE ORE 10 ALLE ORE 12
- PropostaOffro
- ContrattoVendita
- Prezzo379.000,00 €
- Anno1962
- Vani6
- Numero piani2
- Mq totali144
- Classe energeticaA+
- Classe energetica (ipe)0.0
- StatoNuovo
- AscensoreNo
- TerrazzoNo
- GiardinoNs
- CantinaNo
- ProvinciaRimini
- ComuneRimini
- IndirizzoVia niccolò tommaseo 100
- Data12-11-2025 05:47:48
- CodiceEA-D24600











