Via Onorato Capo 65 vani 0mq
Dati annuncio : Affitto Locali commerciali, Anagni
POSIZIONE
Anagni, in prossimità del presidio ospedaliero, su arteria principale che immette al centro storico del paese.
Nelle immediate vicinanze vi è la possibilità di usufruire del parcheggio multipiano San Giorgetto.
Area parcheggio a pagamento, oltre posti auto per disabili, nell´area antistante il locale.
DESCRIZIONE
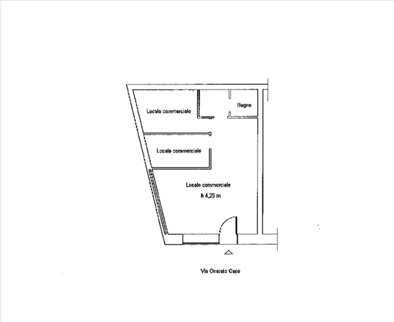
Locale commerciale posto al piano terra di c.a. 65 mq, servito da vetrina con ingresso fronte strada.
La soluzione è composta da tre ambienti commerciali, antibagno e bagno.
Ad oggi risulta locato ad uso commerciale - Libero dal 1 agosto 2025.
La proprietà ha un´altezza interna effettiva di 4,25 mt, attualmente controsoffitta in cartongesso.
STATO E FINITURE
Il locale è stato recentemente ristrutturato, con impianti di nuova generazione con certificazioni e agibilità.
Il locale è servito da serranda elettrica.
Gli ambienti risultano climatizzati.
UTILIZZO E POTENZIALITA´
Per coloro che necessitano di ulteriori metri, potrebbe essere annesso il locale attiguo di c.a. 60 mq (canone da concordare).
* Le presenti informazioni non costituiscono elemento contrattuale, dovranno essere verificate in ogni caso.
Per tutte le soluzioni in affitto, potete visitare il nostro sito www.gruppoempireimmobiliare.it
- PropostaOffro
- ContrattoAffitto
- Prezzo650,00 €
- Vani65
- Numero piani1
- Posti auto3
- Classe energeticaG
- Classe energetica (ipe)268.0
- StatoBuono
- AscensoreNo
- TerrazzoNo
- GiardinoNs
- CantinaNo
- ProvinciaFrosinone
- ComuneAnagni
- IndirizzoVia onorato capo
- CodiceEA-4379C1






