via piacenza MOLASSANA bilocale 850mq
Dati annuncio : Vendita Bivani, Genova
Goa immobiliare vende
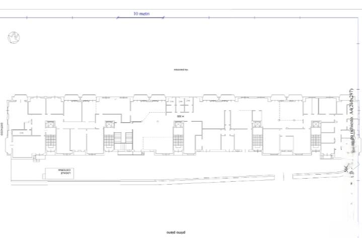
Immobile: Porzione di Palazzo in Zona Molassana - Ottima Opportunità Proponiamo in vendita una porzione di palazzo, costruito nel 1967, situato nella zona di Molassana, ben servita da mezzi pubblici. L´immobile, ideale per diverse destinazioni d´uso, è adatto a residenziale, strutture ricettive alberghiere, sanitarie, case di riposo, uffici e medie strutture di vendita. Caratteristiche principali:
Superficie totale di 1700 mq, distribuita su due piani di 850 mq ciascuno
5 accessi principali, di cui uno indipendente
Ascensore che collega i piani direttamente dalla strada principale
Area privata con accesso carrabile, con possibilità di parcheggio per 13 posti auto
Dotato di caldaia condominiale
Posizione:
L´immobile si trova in una zona ben collegata ai mezzi pubblici, ideale casa di riposo, residenziale abitativo, da investimento per alloggi affitto brevi.
Contatti per informazioni e appuntamenti:
Goa Immobiliare
Tel. 010591323
Email: [email protected]
Sede: Genova, Corvetto, Via Santi Giacomo e Filippo 24
Classe Energetica: G - IPE: 200.00kWh/mq anno
- PropostaOffro
- ContrattoVendita
- Prezzo560.000,00 €
- Vani2
- Piano13
- Mq totali850
- Classe energeticaG
- Classe energetica (ipe)200.0
- StatoDa ristrutturare
- Tipo costruzioneCommerciale
- TerrazzoNo
- GiardinoComune
- RiscaldamentoCentralizzato
- ArrediNon arredato
- BoxPosto auto comune
- ProvinciaGenova
- ComuneGenova
- IndirizzoVia piacenza
- Data25-11-2025 05:26:08
- CodiceEA-B171F8







