Via Quarto bilocale 300mq
Dati annuncio : Vendita Bivani, Padova
Savonarola - Porta Trento
Esclusiva HAB Immobiliare
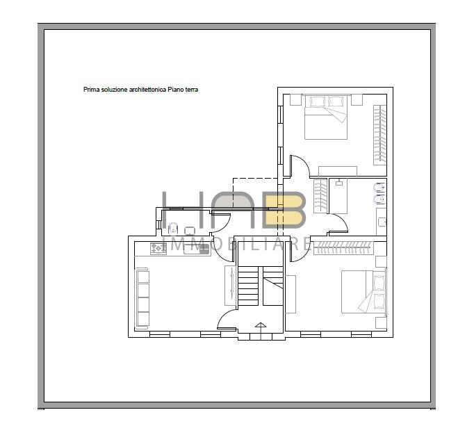
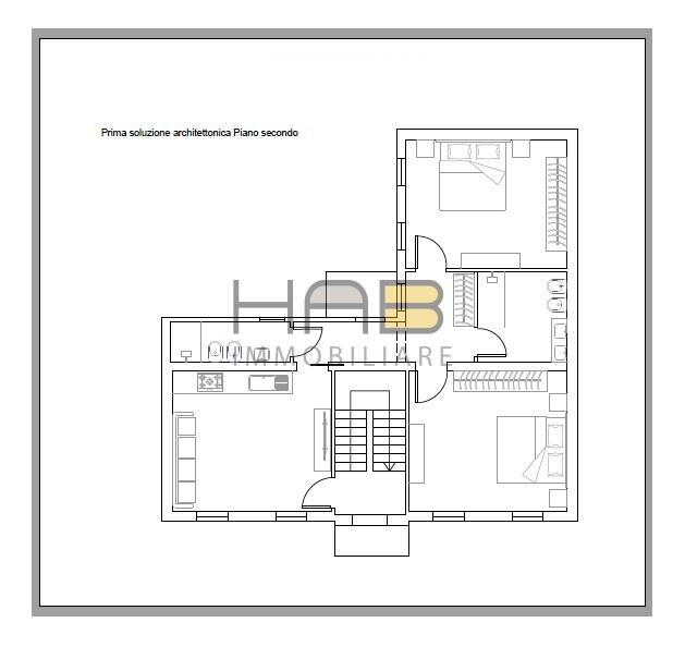
Siamo lieti di proporre in collaborazione con il comparto HAB Ristrutturazioni, una nuova soluzione residenziale a Padova. Nello specifico viene proposta la vendita di un intero stabile costituito da tre unità abitative di circa 80 mq l´una con relativi posti auto e scoperto condominiale. Lo stabile sarà oggetto di un restauro integrale, estetico impiantistico e strutturale.
Le abtazioni saranno dotate di una zona giorno, due camere matrimoniali di ampie metrature e due bagni.
Il condominio presenterà impermeabilizzazione esterna con cappotto da minimo 16 cm, isolamento termico della copertura realizzato attraverso il sistema isolante in Neodur e impermeabilizzazione tetti piani con sistema Sika, sistema di riscaldamento a pavimento e raffrescamento canalizzato, ventilazione meccanica contollata puntuale e altre comodità che ne aumenteranno il confort e la resa energetica.
Ideale anche per investimento vista l´ottima pozione appena fuori mura del centro storico di Padova. La soluzione presenta ampia possibilià di personalizzazione sia a livello di disposizione degli ambienti che di scelta estetica delle finiture.
I clienti saranno agevolati nelle loro scelte dall´affiancamento di un architetto che potrà consigliare ed interpretare al meglio ogni loro esigenza.
Il prezzo è riferito all´immobile ristrutturato chiavi in mano.
Maggiori informazioni presso la nostra sede di Padova in via Piovese 95.
Immobili venduti nell´attuale classe energetica G EPgl,nren 312 kWh/m² anno EPgl,ren 0 kWh/m² anno, classe energetica prevista minimo classe B possibilità di aumento della classe energetica con installazione del sistema foovoltaico - Rif. SF2024SOL1 - € 810.000,00
- PropostaOffro
- ContrattoVendita
- Prezzo810.000,00 €
- Anno2024
- Vani2
- Numero piani3
- Mq totali300
- Camere2
- Bagni2
- Classe energeticaG
- Classe energetica (ipe)312.0
- StatoNuovo
- AscensoreNo
- Tipo costruzionePrestigio
- CucinaAngolo cottura
- TerrazzoNo
- GiardinoNs
- CantinaNo
- RiscaldamentoAutonomo
- BoxSi
- ProvinciaPadova
- ComunePadova
- IndirizzoVia quarto
- CodiceEA-4FF484






