Via Radici in Monte, 53 95mq
95.000,00 €

0 Piace
0 Piace
Dati annuncio : Vendita Case, Sassuolo
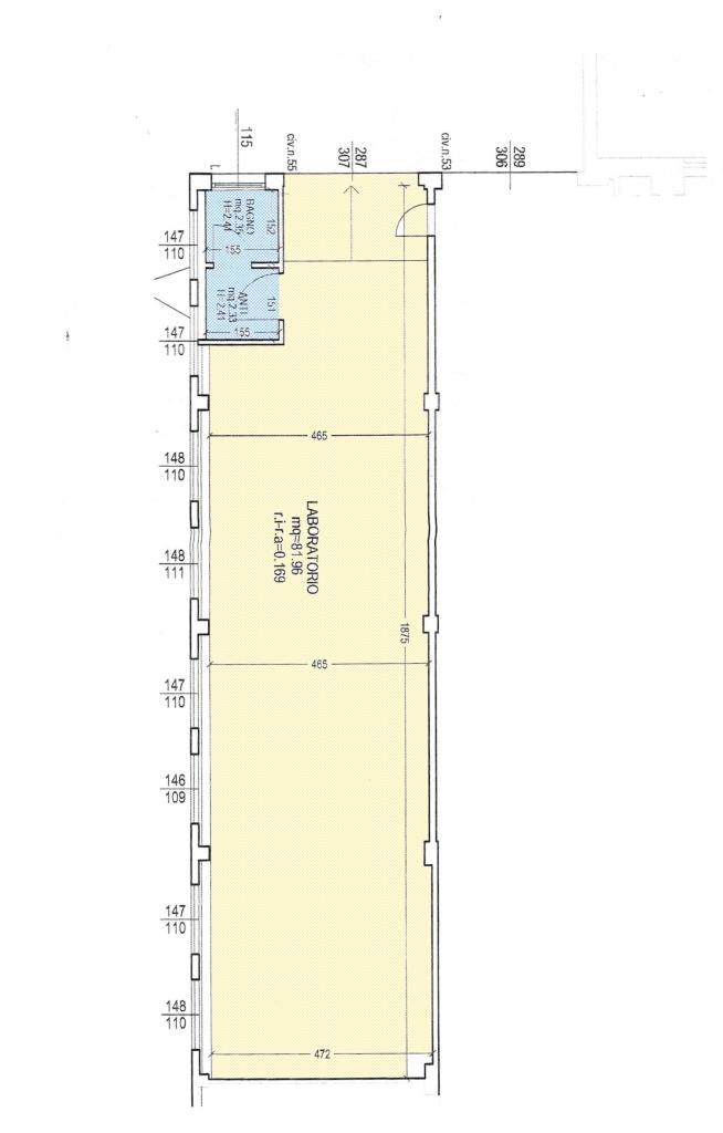
OMNIA STUDIO MODENA PROPONE: NV136 - SASSUOLO, PROSSIMITA´ CENTRO- LABORATORIO RISTRUTTURATO CON SERVIZIO, POSTO AL PIANO TERRA.
(C.E . ´´F´´ – IPE = 495,90 Kwh/mq/a.)
OMNIA STUDIO - Modena -
* Per informazioni: 059 241710.
* Per altri immobli visita il nostro sito: omniastudiomodena.it
- PropostaOffro
- ContrattoVendita
- Prezzo95.000,00 €
- Numero piani1
- PianoPiano terra
- Mq totali95
- Bagni1
- Classe energeticaF
- Classe energetica (ipe)495.9
- StatoRistrutturato
- AscensoreNo
- Tipo costruzioneCommerciale
- CucinaNon specificato
- ArrediNon arredato
- BoxPosto auto
- Spese condominiali0.0
- ProvinciaModena
- ComuneSassuolo
- IndirizzoVia radici in monte, 53
- Data01-12-2025 05:32:35
- CodiceEA-90ADAC








