via ramei 5 vani 120mq

Dati annuncio : Vendita Pentavani, Campolongo Maggiore
A Campolongo Maggiore in prossimità di Piove di Sacco (PD) (a circa 1KM) , prossima costruzione di nuova BIFAMILARE AL PIANO TERRA, con ampio giardino a partire da 500 mq per arrivare fino ad un massimo di 1000 mq. .
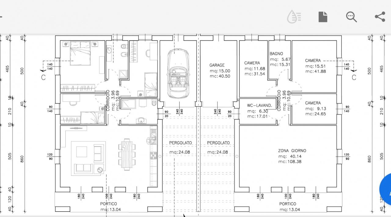
Ogni porzione è composta di ampio sogg.-cucina di 40 mq., 3 camere letto (matrim, doppia e singola), 2 bagni finestrati e garage. Presente inoltre un portico/pompeiana per un ulteriore posto auto.
Tutti i locali compreso il garage sono distribuiti in un unico pian terreno,.
Zona tranquilla immersa nel verde e nello stesso tempo comoda alla Cittadina di Piove di Sacco (comoda anche all´ingresso della strada dei vivai che dista a circa 500 mt.)
Prest. energ. presunta A4
Prezzo riservato, chiedere in Agenzia. Classe Energetica: A4 - IPE: 0.00kWh/mq anno
- PropostaOffro
- ContrattoVendita
- Prezzo-
- Vani5
- Numero piani1
- Piano1
- Mq box20
- Mq giardino500
- Mq totali120
- Camere3
- Bagni2
- Posti auto1
- Classe energeticaA4
- StatoNuovo
- Tipo costruzioneResidenziale
- CucinaAbitabile
- GiardinoPrivato
- RiscaldamentoAutonomo
- BoxBox singolo
- ProvinciaVenezia
- ComuneCampolongo maggiore
- IndirizzoVia ramei
- Data18-08-2025 06:03:15
- CodiceEA-A9F556




