Via Renato Medri 2415 9 vani 211mq
Dati annuncio : Vendita Multivani, Cesena
GATTOLINO: Nella prima campagna cesenate a pochi km dalla città ma anche dalle più frequentate località marittime della riviera, proponiamo interessante casa indipendente totalmente ristrutturata di recente, abbinata parzialmente su un solo lato e circondata dal verde.
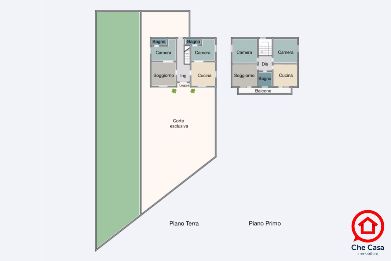
L’immobile, disposto su due livelli sviluppa al piano terra: ingresso su vano scale, cucina, soggiorno, due camere da letto matrimoniali e due bagni, mentre al piano primo troviamo, soggiorno, cucina, due camere matrimoniali, bagno e balcone.
Oltre alla classica soluzione monofamiliare, che sicuramente ne esalta tipologia e spazi, allo stato di fatto, la casa offre più opzioni abitative in quanto già suddivisa al piano terra in due piccoli appartamenti, potenzialmente autonomi perché dotati di tutto ciò di cui necessita un’unità indipendente.
Completa la proprietà una corte pavimentata con bellissimo giardino per una superficia totale di circa 600mq sulla quale è presente anche un’ampia struttura coperta destinata al ricovero di auto e moto.
Ideale per famiglie numerose o con esigenze particolari che vogliono godere del contatto visivo con la natura senza rinunciare a poter raggiungere qualsiasi meta in pochi minuti.
N.B. Le presenti informazioni non costituiscono elemento contrattuale.
Per informazioni e per fissare la tua visita, chiama Christian al numero 333 6236992
- PropostaOffro
- ContrattoVendita
- Prezzo358.000,00 €
- Vani9
- Numero piani2
- Mq giardino597
- Mq totali211
- Camere4
- Bagni3
- Classe energeticaVa
- Classe energetica (ipe)0.0
- StatoBuono
- AscensoreNo
- TerrazzoNo
- GiardinoNd
- CantinaNo
- BoxSi
- ProvinciaForli-cesena
- ComuneCesena
- IndirizzoVia renato medri 2415
- Data18-08-2025 05:07:34
- CodiceEA-74A1A5











