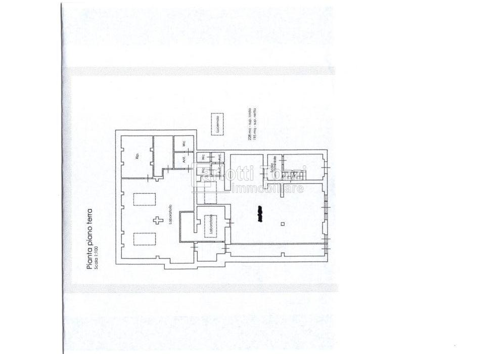
VIA ROMA CENTRALE monolocale 230mq
235.000,00 €

0 Piace
0 Piace
Dati annuncio : Vendita Monovano, Grosseto
VENDESI IN ZONA VIA ROMA FONDO COMMERCIALE DI 230 MQ CON DUE VETRINE E DOTATO DI TRE SERVIZI FACILMENTE ADATTABILE AD ATTIVITA´ DI RISTORAZIONE O BAR. ARRICCHITO DA CANTINA SOTTOSTANTE DI CIRCA MQ 80. CAT. ENERG. ´´G´´ IPE 1755. RICHIESTA VERAMENTE INTERESSANTE : 235.000 Classe Energetica: G - IPE: 175.00kWh/mq anno
- PropostaOffro
- ContrattoVendita
- Prezzo235.000,00 €
- Vani1
- Numero piani2
- Piano1
- Mq totali230
- Bagni3
- Classe energeticaG
- Classe energetica (ipe)175.0
- StatoAbitabile
- Tipo costruzioneCommerciale
- TerrazzoNo
- GiardinoNessuno
- CantinaSi
- RiscaldamentoAssente
- ArrediNon arredato
- BoxNessuno
- ProvinciaGrosseto
- ComuneGrosseto
- IndirizzoVia roma
- Data18-08-2025 06:03:15
- CodiceEA-889AD9

