Via Roma Centro Storico 600mq
10.000,00 €

0 Piace
0 Piace
Dati annuncio : Affitto Case, Palermo
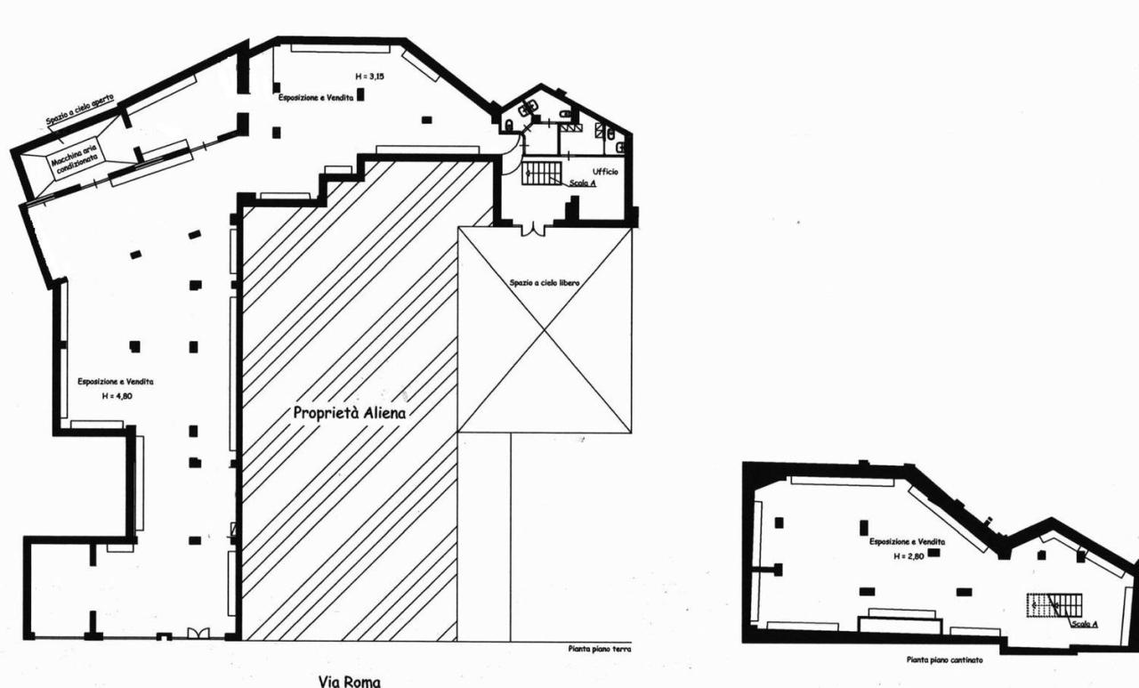
Via Roma altezza Piazza Borsa locale commerciale con sei vetrine, destinazione C/1 - piano strada superficie mq 600 più 350 piano cantinato intercomunicante uso deposito.
- PropostaOffro
- ContrattoAffitto
- Prezzo10.000,00 €
- Mq totali600
- ArrediNon arredato
- ProvinciaPalermo
- ComunePalermo
- IndirizzoVia roma
- Data12-12-2025 05:05:48
- CodiceEA-12218C

