Via Salvatore Quasimodo 7 monolocale 6250mq

495.000,00 €
0 Piace
0 Piace

Dati annuncio : Vendita Monovano, Pedara

All´interno del Comune di Pedara, in prossimità del centro abitato, in Via Salvatore Quasimodo, L´Agenzia Immobiliare Century21 Masters propone la vendita di un lotto di terreno edificabile con una superficie catastale totale di oltre 6.200 mq.

All´interno del lotto insiste già un fabbricato, catastato A7, con una superficie interna di oltre 150mq.

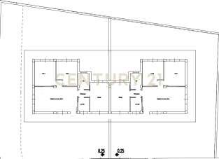
La cubatura sfruttabile del lotto permetterà la realizzazione (Vedi foto di progetto) di 10 Ville singole e bifamiliari con tagli diversi e superfici interne di c.a. 120 mq su un unico livello, con lotti di terreno di c.a. 500mq per ogni villa, utili anche per la realizzazione di piscine.

Il terreno si presenta pianeggiante, ha un´ottima esposizione a sud, panoramica ed è interamente recintato.

Contattaci per fissare il tuo appuntamento di visita.

La proprietà prende in considerazione anche pagamenti dilazionati.

  • PropostaOffro
  • ContrattoVendita
  • Prezzo495.000,00 €
  • Vani1
  • Numero piani1
  • Mq totali6250
  • Classe energeticaA
  • Classe energetica (ipe)175.0
  • AscensoreNo
  • Tipo costruzionePrestigio
  • TerrazzoNo
  • GiardinoNs
  • CantinaNo
  • ProvinciaCatania
  • ComunePedara
  • IndirizzoVia salvatore quasimodo 7
  • CodiceEA-8084FA