Via Stazione 340mq

260.000,00 €
0 Piace
0 Piace

Dati annuncio : Vendita Locali commerciali, Ferentino

POSIZIONE
Ferentino, in posizione facile da raggiungere, su strada principale e ad alta visibilità.
Su strada che collega la stazione ferroviaria e il casello autostradale di Ferentino al paese.

DESCRIZIONE
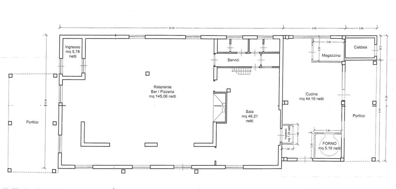
Locale commerciale, unico nel suo genere (ultimo utilizzo ad uso ristorante-pizzeria), dislocato su unico livello di c.a. 340 mq, oltre 63 mq c.a. di portici e 42 mq c.a. di tettoia con bagno, quest´ultima è distaccata dal corpo principale.
Completa la proprietà un terreno di c.a. 3.000 mq, in parte adibito a corte e in parte destinato a parcheggio e giardino, il tutto recintato.

STATO E FINITURE
La struttura si presenta in buono stato di manutenzione, ovviamente necessita di aggiornamenti, in base alla tipologia di uso commerciale/attività da svolgere.

UTILIZZO E POTENZIALITA´
La struttura di fatto ha molteplici potenzialità ad uso ristorazione (possibilità di trasformarla in una location unica sul territorio), ma può essere utilizzata anche come supermercato, caseificio, forno, ecc.
In alternativa, si possono svolgere altri tipi di attività - Ideale per coloro che necessitano di uno spazio espositivo-commerciale, di un deposito o di una piccola area produzione.
La soluzione potrebbe essere adattata anche come asilo nido e attività similari.
La proprietà, in virtù del fatto che ha una totale indipendenza, risulta essere un ottimo investimento immobiliare.

* Le presenti informazioni non costituiscono elemento contrattuale, dovranno essere verificate in ogni caso.

Per tutte le soluzioni in vendita, potete visitare il nostro sito www.gruppoempireimmobiliare.it

  • PropostaOffro
  • ContrattoVendita
  • Prezzo260.000,00 €
  • Numero piani1
  • Mq totali340
  • Bagni1
  • Classe energeticaG
  • Classe energetica (ipe)268.0
  • StatoBuono
  • AscensoreNo
  • TerrazzoNo
  • GiardinoNs
  • CantinaNo
  • ProvinciaFrosinone
  • ComuneFerentino
  • IndirizzoVia stazione
  • CodiceEA-23DF80