VIA STAZIONE bilocale 103mq
Dati annuncio : Vendita Bivani, Crema
CREMA CENTRO IMPERDIBILE!!!! NUOVA COSTRUZIONE IN CLASSE A
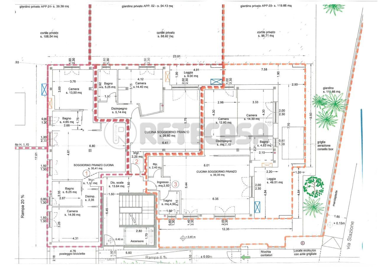
POSIZIONE CENTRALISSIMA, a due passi da Piazza Garibaldi, proponiamo PALAZZINA DI NUOVA COSTRUZIONE costituita da 12 unità immobiliari, ognuna dotata di box (singoli o doppi)
Ai piani terra e primo disponibili n. 2 BILOCALI così composti: ingresso, ampio soggiorno con angolo cottura, disimpegno, camera matrimoniale e bagno.
Il bilocale al piano terra gode di un bel GIARDINO PRIVATO, in parte pavimentato, quello al piano primo di una bella LOGGIA sulla zona giorno attrezzabile per pranzi e cene all´aperto.
Le abitazioni sono servite da ascensore, le finiture interne sono a scelta dell´acquirente da capitolato di ottima qualità.
La costruzione prevede: impianto di riscaldamento a pavimento in pompa di calore, cappotto esterno da 15 cm, serramenti esterni in legno con tripli vetri basso emissivi, sistema di ventilazione meccanica, predisposizione A/C, zanzariere, tapparelle elettriche e impianto fotovoltaico.
La consegna è prevista per FINE 2024
Prezzi: piano terra € 287.000, piano primo € 270.000
TI ASPETTIAMO IN UFFICIO PER PRENOTARE LA TUA CASA DEL FUTURO!!!
Classe A3
Alcuni dati descrittivi dell´immobile potrebbero essere solo approssimativi (es: spese di riscaldamento, spese condominiali e divisione superfici) e pertanto verranno forniti in modo completo solo telefonicamente oppure in fase di appuntamento.
SI PRECISA che l´indirizzo pubblicato INDICA SOLO LA ZONA E/O LA DIREZIONE di ubicazione dell´immobile. Dettagli più precisi verranno forniti solo con contatto telefonico.
Per maggiori informazioni o visite contattare senza impegno i numeri 0373/1996506 o 329/6772411.
Se preferite, VENITE A CONOSCERCI DI PERSONA, ci trovate a Crema in Viale De Gasperi n. 25.
- PropostaOffro
- ContrattoVendita
- Prezzo270.000,00 €
- Anno2024
- Vani2
- Numero piani1
- Mq totali103
- Camere1
- Bagni1
- Classe energeticaA+
- Classe energetica (ipe)0.0
- StatoNuovo
- AscensoreSi
- CucinaAngolo cottura
- TerrazzoNo
- GiardinoNd
- CantinaNo
- RiscaldamentoAutonomo a pavimento
- ProvinciaCremona
- ComuneCrema
- IndirizzoVia stazione
- Data22-10-2025 05:18:35
- CodiceEA-7F6CA0











